近期四项目将迎首开 高端盘占主流
2018-06-12 00:11:00 来源: 济南房地产网
纯新盘入市会为楼市注入新鲜血液,也会为置业者带来更多选择。济南这四个项目近期将迎来首开。
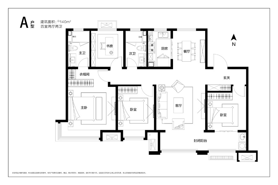
2017年8月4日土拍,2017-G068与2017-G069捆绑出让,三轮竞价后,以145291万元成交,住宅地块楼面价5674元/平。2017-G068属于住宅用地、位于历城区唐冶新区龙凤山路以东唐冶西路以西贞观街南侧;2017-G069属于商业用地、位于历城区唐冶新区世纪大道以北龙凤山路东侧。随后万科拉来了中骏、金地、龙湖联合开发,住宅地块为玖唐府项目,预计开发18层小高层,属于低密度精装社区。

户型基本与已经售罄的龙湖春江悦茗基本相似,也是属于市面上难得一见的好户型。
玖唐府项目预计2018年6月首开。项目预计首推1#楼和2#楼房源,预计推出125㎡、140㎡房源。1#楼和2#楼均为18层小高层,1梯2户,2个单元规划。
2017年12月1日土拍,西沙王庄城中村改造项目A-1地块受到开发商的追捧。地块位于槐荫区美里湖街道办事处西沙王庄村,为居住用地,出让面积50625平方米,约合土地面积75.9亩。2016年,西沙王城中村项目已启动改造,将变身集住宅、商业设施、医疗学校为一体的新型城市社区。这是西部稀缺的居住用地,因此备受关注。经过25轮的土地竞拍,南京硕天投资管理有限公司以12.6亿元的价格摘得该地块,楼面价为9573元/㎡。南京硕天投资管理有限公司为世茂旗下公司。后经确定,世茂与中建联合开发。
璀璨悦府将建设11栋高层,7栋18层高层,1栋24层高层,2栋25层高层。地上容积率为2.6,共1115个停车位,绿地率30%。
璀璨悦府预计6月底开盘销售,整体规划12栋精装修住宅楼,首期推出103㎡和115㎡户型,预计2020年底交房。
万科翡翠公园美好生活剧场5月6日正式开幕。万科翡翠公园项目规划有高层小高层房源,规划楼栋数在8栋,其中16#楼为小高层,其余楼栋为高层,项目规划户数在2529户。万科翡翠公园规划房源户型面积在122㎡、129㎡、143㎡、144㎡、148㎡、169㎡,预计6月首开,130m楼间距,约9米宽厅大开间。
济水别苑
济水别苑项目预计在6月底将首开房源。届时将会有111㎡-149㎡户型住宅房源推出,套数在378套,楼栋为1#、9#、22#楼。项目预计在2020年6月30日前将实现交房。项目位于大学路和紫薇路交汇口向南300米。

-
优质项目加速入市,重点城市供应增加,12月楼市成交有望企稳
2025-12-16
-
11月70城房价:一二三线城市房价环比总体下降、同比降幅扩大
2025-12-15
-
从这些重点项目透视济南产业的“关键一跃”
2025-12-15
-
济南二手房交易有了“智慧评估价”
2025-12-12
-
中国房地产市场:2026或增政策,销售降幅有望收窄
2025-12-12


