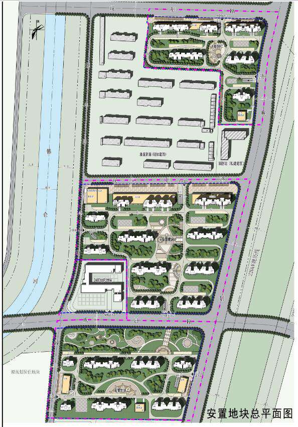
济南市港沟街道潘庄、田庄城中村改造安置房项目规划社会公示
2017-08-09 09:54:02 来源: 济南市规划局
[ 摘要 ]济南市港沟街道潘庄、田庄城中村改造安置房项目规划社会公示
济南市港沟街道潘庄、田庄城中村改造安置房项目规划社会公示

声明:以上资讯中涉及到的面积均为建筑面积
相关新闻
-
济南地铁4、8号线及6号线东段最新进展→
2025-12-17
-
腊山河西路南延 济南生态廊道添新景
2025-12-16
-
“生态融于途 泉城新景现”,济南轨交4号线冲刺开通运营
2025-12-16
-
兴隆公园运动场地初具规模 打造济南城市运动新地标
2025-12-15
-
“济南第一高”塔冠玻璃幕墙封顶在即
2025-12-12


