户型图里也有这么多门道?学会这些轻松识破其中陷阱!
2017-08-07 10:00:00 来源: 济南房地产网
居住之前是装修,装修之前是买房,买房之前是看户型,可是户型图拿到手中,却经常看不懂?看懂户型图,才能对房间采光、格局、动线等了然于胸。小编整理了看懂户型图的两个要素和五个陷阱,这些没搞清楚之前,可不要着急买房哦。
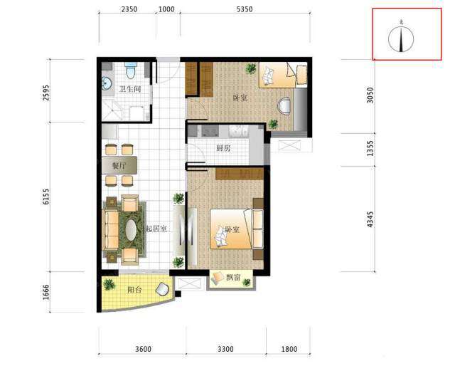
一、图标
承重墙:实体的线条就是承重墙,装修时承重墙无论如何是不能动的,要不可能会有安全隐患。
活墙:也就是我们说的非承重墙了,一般以空心的矩形表示。仅做间隔空间用,可根据你的需求拆除改变格局。
空调机位:矩形里面打叉,或者在里面表示AC,一般客厅和卧室的外墙都应该有统一的空调外机位置。
窗户:窗户一般是3线连接,不凸出,长短不一,短的是一般的窗户,长的是飘窗。
飘窗:三段凸出的矩形。飘窗不是户型的标配,看自己的需求哈。
外开门:模仿开门角度的扇形,一般来说,室内的门都是内开门,只有玄关门是外开门。
内开门:看图说话,举一反三,就知道这个是内开门吧。
赠送面积:主要是阳台或者阁楼,一般面积不会太大。
衣柜:衣柜一般是个矩形,里面一格格的,有没有很形象,像我们一件件挂起来的衣服。
油烟管道:一般位于厨房的角落,方形里面有一条折线。
指北针,这个可以帮你判断房子的具体朝向。
二、 开间和进深
开间是指宽度(下图红色),一般在3~3.9米;进深是指长度(下图蓝色),控制在5米左右。房间的开间和进深的比值介于1-1.5之间,户型看起来更方正。
如果进深过大,开间过小,不利于采光通风,房间会显得比较暗;如果进深过小,开间过大,那房间的保温效果可能一般,冬更冷夏更热。并且,你还能根据标尺提前算好每个空间的大小。
户型图中经常出现的五个陷阱
1、尺寸标注过多或过少
尺寸标注过于简洁,会省略很多数据,购房者如果不进行二次确认,无法准确的计算房屋面积;相反,尺寸标注过于繁琐的户型图,一般保留了较多的专业数据和轴线,很容易使购房者混淆。
2、图注不规范
有一些印刷质量较差或不规范的户型图上使用的图注不够清晰,例如在正规户型图中,窗户的图注为两条墙中夹了两条窗框线(三或四条平行细线)、钢筋结构墙是粗黑实线,而不标准的户型图中很容易二者混在一起,如果购房者不加以留意,装修入住过程可能会面临采光以及墙体能否拆除的问题。
3、用色彩营造空间感
户型图既有黑白也有彩色的,一般彩色户型图中不同的空间间隔都采用了深浅不一的色彩填充的方法,黑白户型图上也有很多明暗灰度的变化,这样设计的目的有二:A可使画面更美观;B让购房者产生空间感知上的错觉,忽略实际的开间和尺寸。
4、随意缩放绘制家具比例
多数户型图的区域绘制了相应的家具,此举可以营造一种生活氛围。但值得注意的是,很多开发商会在制作户型图的过程中,刻意忽略实物比例,随意缩放绘制家具比例,其目的就是为了突出户型的空间感。简单举个例子,根据户型图上的标注,某个小房间的面积为6平方米,但其中布置了双人床加衣柜还有很大空间,很明显与现实存在差距。
5、单元及整层平面图放置在不起眼的位置
购房者一般会发现户型图上的内容多为单独房源的平面图,然而单元户型图、整层平面图往往被开发商放在毫不起眼的角落。这两个部分购房者可不能忽视,根据这些可以判断房源在整层的位置以及单元在整栋楼的位置。例如房源正对电梯口、相邻两户的某些窗户相邻过近等在生活中都会产生问题。
小编支招:由于每个购房者对于房产知识的认知以及图像读取能力有所差异,因此建议购房者定要时刻保持头脑清醒,保持火眼金睛,根据自己的实际情况,发现户型图中存在的问题一定要有自己的判断和理解,对不确定的信息加以确认,发现问题及时咨询。

-
好家伙!哪一层都不能买啊!
2022-01-13
-
写给2022年因为还房贷而焦虑的你
2022-01-12
-
年底置业,“低首付”的房子可以买吗?
2022-01-11
-
牛年年底,劝一下想返乡置业的你
2022-01-04
-
买商铺能养老吗?能实现财富自由吗?
2021-12-21


