最新!机床一厂城市更新项目新进展
2019-08-06 10:18:50 来源: 济南房地产网
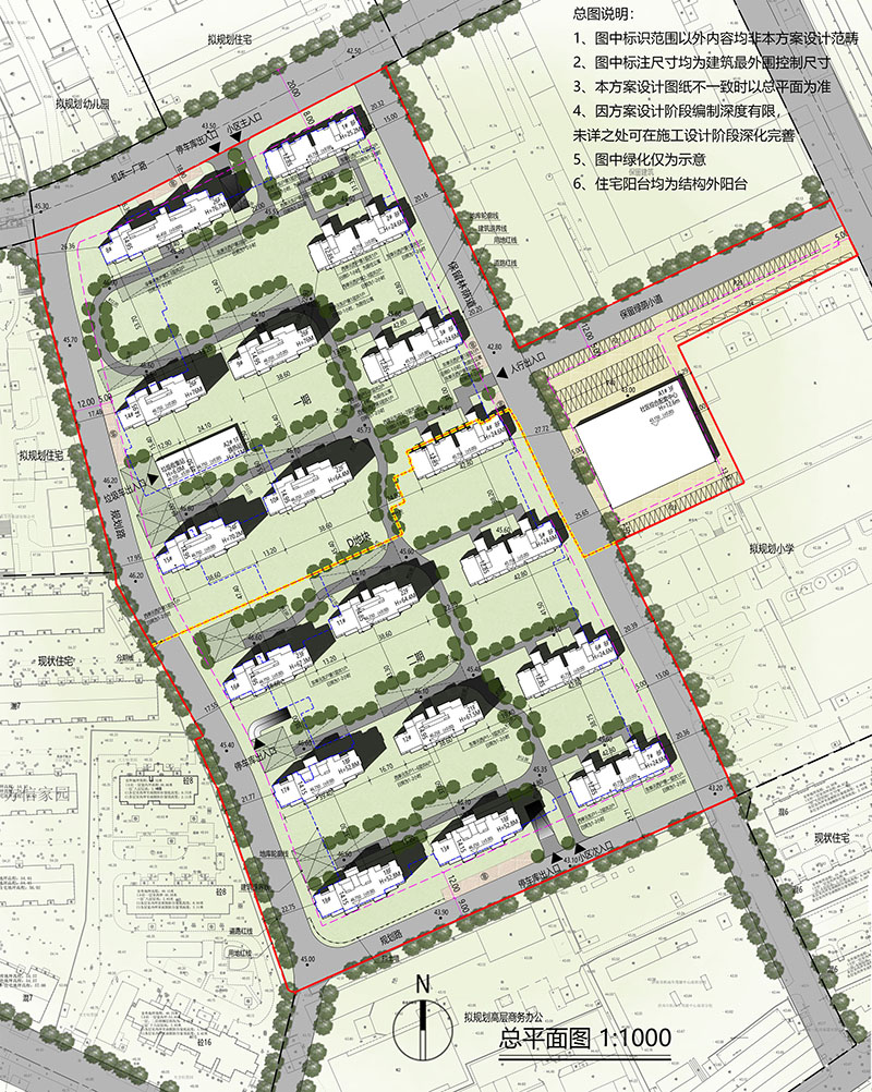
8月2日,济南市自然资源和规划局公布《机床一厂城市更新项目D地块一期、二期建设工程规划许可批前公示》,项目均位于济南市市中区,东至规划路,西至白马山路,南至天业路,北至刘长山路。用地单位为济南骏茂房地产开发有限公司。
从项目公示中了解到,此项目总用地面积176567.07㎡,地上容积率1.90,地下容积率0.37,绿地率30.00%;总户数1248户,机动车停车位1277辆。
规划中显示,一期总建筑面积为92302.81㎡,地上建筑面积73395.01㎡,总户数640户,机动车停车位708辆,其中地上停车位127辆,地下停车位581辆;二期总建筑面积为84264.26㎡,地上建筑面积65165.99㎡,总户数608户,机动车停车位569辆,均为地下停车位。
项目规划中共有18栋楼,其中1#-7#为洋房,8#-18#为高层。并建有社区综合配套中心、换热站和垃圾收集站来满足社区需求。洋房楼西户均含有居住公寓,居住舒适程度高,环境舒适而宁静;住宅水、电、暖供给一应俱全,周边配套较为完善,购物、道路交通、通讯设施等的标准较高。

-
济南首批配售型保障房选房开始
2025-07-12
-
济南首批433套配售型保障房本月发售,市民看房热情高涨,9月还将有项目入市
2025-06-16
-
新规1号作品 | 济南观山隐秀美学逸境示范区,实景开放
2025-05-06
-
济南3000套特惠房源来了
2025-02-12
-
济南房价情况,最新公布
2024-01-30


