最新!济南西部将建多所幼儿园、中小学!具体位置及建设规划看这!
2019-07-16 10:02:31 来源: 济南日报
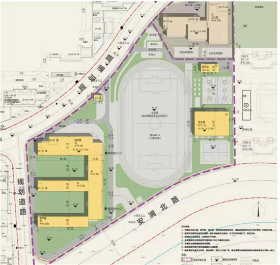
最新公示!为满足辖区居民需求,槐荫区将新建多所幼儿园和中小学,涉及段店一所18班幼儿园及42班小学建设项目、北大槐树棚户区配套九年一贯制学校建设、实验中学西侧X地块幼儿园建设等。学校具体位置及规划图公布,看你家附近有吗?
段店AX-1地块18班幼儿园、段店AX-2地块42班小学建设项目
两项目均位于槐荫区经十路以南、二环西路以东,设计单位为省建筑设计研究院有限公司,建设单位是槐荫区教育和体育局。
18班幼儿园建设项目 用地总面积5380平方米,地上总建筑面积6223.8平方米,建筑容积率1.16,建筑密度40%。计划幼儿园总人数450人,每班25人。
42班小学建设项目 用地总面积28101平方米,总建筑面积15492.26平方米,地上总建筑面积14582.76平方米,地下总建筑面积909.5平方米,建筑容积率0.52,建筑密度15%。计划小学总人数1890人,每班45人。
北大槐树棚户区改造项目配套九年一贯制学校建设项目
位于槐荫区经一路以北、纬十二路以东,用地单位也是槐荫区教育和体育局,市政规划建设用地面积约0.34公顷,其中一期市政规划建设用地0.31公顷,二期市政规划建设用地0.03公顷。项目规划用地面积约2.39公顷,项目规划建设用地容积率不大于1.2。
实验中学西侧X地块幼儿园建设项目
该项目位于槐荫区东营路西侧、清源路南侧的实验中学西侧X地块幼儿园建设项目建设规模调整,该项目涉及单位是山东省城建设计院,建设用地面积0.48公顷不变,经容积率调整程序,由6班扩容至9班。

-
济南3000套特惠房源来了
2025-02-12
-
济南房价情况,最新公布
2024-01-30
-
济南第六座万达广场开工,落子西客站片区
2024-01-08
-
2023年9月济南共计推盘31次,推出房源2684套,供应量翻倍!
2023-10-10
-
全面解除限购后的首个“小长假”,济南楼盘到访量明显增长
2023-10-02


