硬核!济南又一保障房项目公示!有地铁站、超高层酒店……宜住宜商宜出行!
2019-06-26 11:48:48 来源: 济南时报
6月25日,济南市自然资源和规划局,对丁家村城中村改造村民保障用房项目建设工程规划许可批前公示。
地块内有轨道交通3号线丁家庄东站,有188米超高层建筑,3000平方米公交枢纽大型商业和公寓,宜住宜商宜出行,堪称济南“最牛保障房项目”。
丁家村曾是济南东部著名的城中村,一度有数万外来人口在此租房居住,于2017年10月开始拆迁。根据规划,丁家村拆迁完毕后成为科技城片区的一部分,区域内大片村庄用地将转变用途,成为住宅及商业、公园等用地,为国际金融城北部带来巨大的发展空间。
项目这么规划
建设单位:济南市历下区姚家街道丁家村村民委员会,
位置:历下区工业南路以南,奥体西路以西,用途为商业商务用地,与华润超高层地块相距不远。
规模:地上建设用地面积35092.8平方米,地下30747.8平方米,总建筑面积208942.67平方米,保障面积159240平方米,公交枢纽面积约3000平方米,停车位634个。
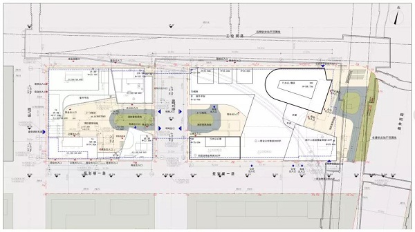
总平面图
项目共有两个地块
东地块:
位于国际金融城东北角,靠近奥体西路一侧有轨道交通3号线丁家庄东站,为地下三层结构,可通往地上188.7米的超高层建筑。
东地块北面,即工业南路北侧为远期轨道交通地铁站。
东地块上超高层已命名为嵘汇中心,地上39层,功能为办公、酒店;
南侧靠近规划横一路有大型公交枢纽。
西地块:
规划102.1米超高层建筑,以及工业南路沿街商业、74.5米高的公寓建筑等。
总体来看,两个地块上办公、酒店、商业、公寓业态齐全,交通便利,特别是在轨道交通3号线今年即将开通的背景下,该保障房项目引人关注。

-
“济南第一高”塔冠玻璃幕墙封顶在即
2025-12-12
-
济南最浅地铁站露花容
2025-12-12
-
洪楼TOD城市更新二期A1项目施工提速
2025-12-12
-
济南轨道交通9号线车站主体结构全部封顶
2025-12-11
-
济南市以项目提升强产业暖民生
2025-12-11


