万象新天M地块一期部分建设工程规划许可批后公示 共规划19栋住宅
2019-06-12 08:36:00 来源: 济南房地产网
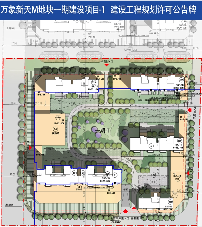
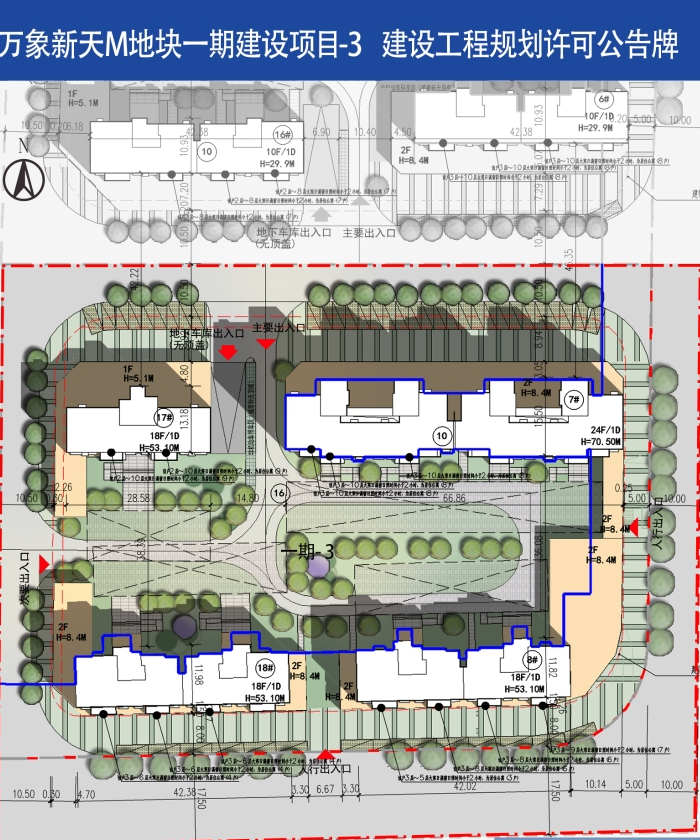
6月10日,济南市自然资源和规划局公布万象新天M地块一期建设项目-1/2/3/4建设工程规划许可批后公示,规划中共19栋住宅楼。
该居住项目位于历城区坝王路东侧,杨北路(响泉路)以南,建设单位为济南鸿卓房地产开发有限公司。



从公示楼栋来看,以小高层为主,19栋楼中,有12栋楼为18层,1栋10层,1栋11层,2栋24层,2栋27层,多是2个单元,另外4个单元的2栋楼,1个单元的3栋楼。
万象新天地块较大,前期开发地块早已入住,哈弗郡、剑桥郡、云公馆、万卷府等多个地块已发展成熟。社区巨大且前期配套已成型,高尔夫练习场、儿童主题公园以及万象新天学校,为了满足社区内学位需求,更是有万象新天学校东校区。
目前万象新天片区内二手房价位在1.5万元/㎡左右,不过由于地块众多,楼栋位置以及规划等因素影响,片区内价格差异也比较大,早期的多层住宅价格可达到1.8万元/平米。

-
全面解除限购后的首个“小长假”,济南楼盘到访量明显增长
2023-10-02
-
2023年7月济南共计推盘21次,推出房源1882套
2023-08-02
-
2023年1月济南共计推盘10次,新增房源1067套
2023-02-01
-
2022年11月济南共计推盘25次,新增房源1975套
2022-12-01
-
2022年9月济南共计推盘25次,新增房源1484套
2022-09-29


