-
建筑面积18
-
总户数3908
-
建筑年代2021年建
-
容积率2.86
-
物业费暂无资料
-
绿化率35
城投伴山居 南北
保真房源
捡漏房源
成熟商圈
毛坯
室内设施
房源照片
1
2
3
4
5
6
7
8
查看更多图片
小区信息
城投伴山居
周边配套
850
元/月
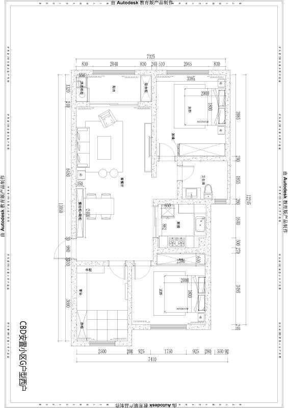
厅室4室1厅1卫1阳台
朝向南北 建筑面积129.4㎡

