-
建筑面积71700
-
总户数2051
-
建筑年代2016年建
-
容积率暂无资料
-
物业费1.80
-
绿化率37
和润幸福城 南北
保真房源
捡漏房源
成熟商圈
毛坯
室内设施
房源照片
2
3
4
5
6
7
8
9
10
11
12
13
查看更多图片
小区信息
和润幸福城
周边配套
3200
元/月
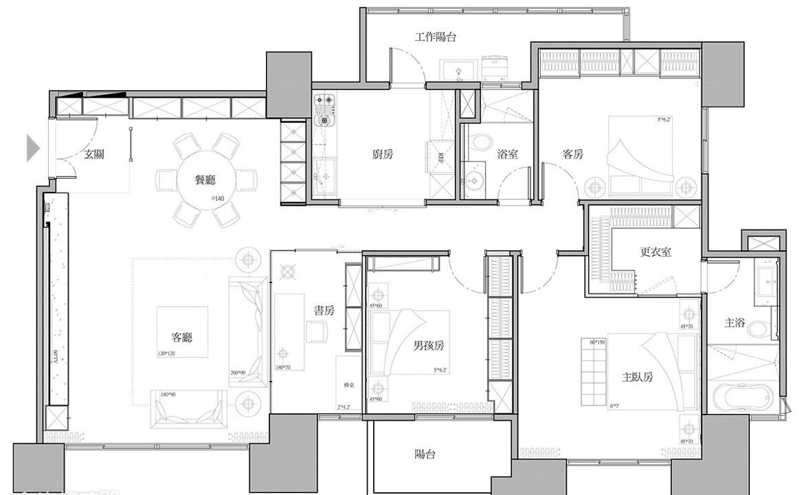
厅室4室2厅1卫1阳台
朝向南北 建筑面积185.89㎡

