-
建筑面积39000
-
总户数1781
-
建筑年代1996年建
-
容积率2.2
-
物业费暂无资料
-
绿化率32
南刘小区 东西
保真房源
捡漏房源
成熟商圈
简单装修
室内设施
房源照片
1
2
3
4
5
6
7
8
9
10
11
12
13
14
查看更多图片
小区信息
南刘小区
周边配套
1800
元/月
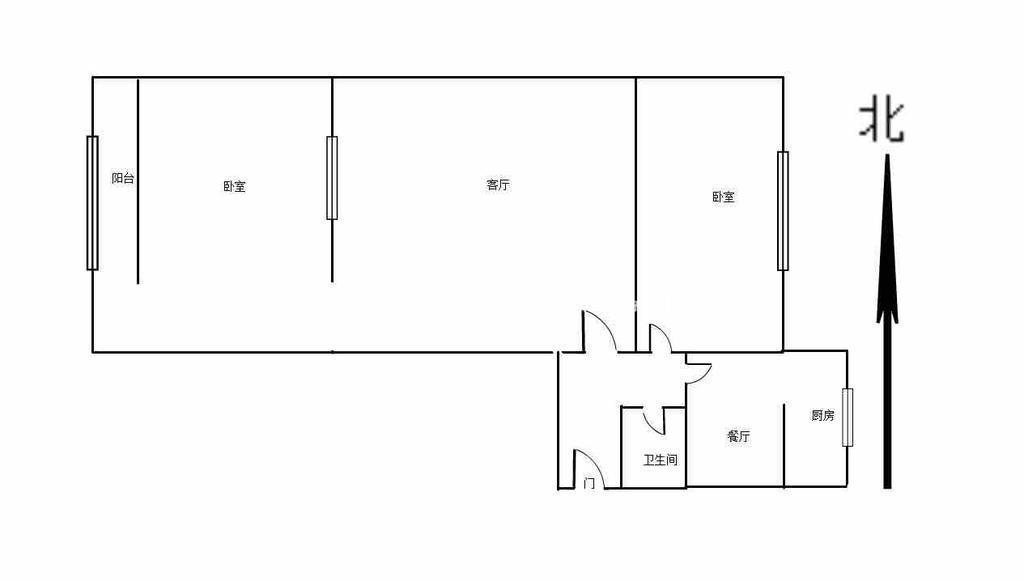
厅室2室1厅1卫1阳台
朝向东西 建筑面积70㎡

