-
建筑面积70000
-
总户数暂无资料
-
建筑年代
-
容积率暂无资料
-
物业费暂无资料
-
绿化率35
魏华园小区 南
保真房源
捡漏房源
成熟商圈
简单装修
室内设施
房源照片
1
2
3
4
5
6
7
8
9
10
11
查看更多图片
小区信息
魏华园小区
周边配套
1300
元/月
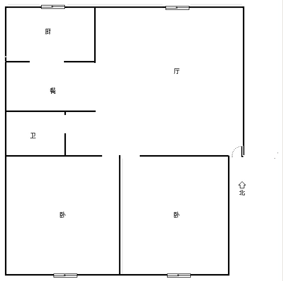
厅室2室2厅1卫0阳台
朝向南 建筑面积89㎡

