万科劝学里 南北
保真房源
捡漏房源
成熟商圈
精装修
室内设施
房源描述
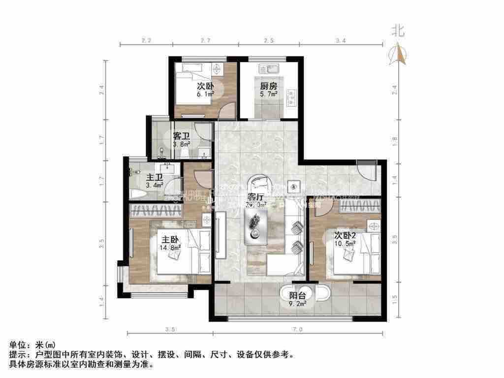
唐冶 万科劝学里 3室1厅 9
房源照片
2
3
4
5
6
7
8
9
10
查看更多图片
小区信息
万科劝学里
周边配套
799
元/月
厅室3室1厅2卫1阳台
朝向南北 建筑面积120.3㎡

