白马花园 南
保真房源
捡漏房源
成熟商圈
简单装修
室内设施
房源描述
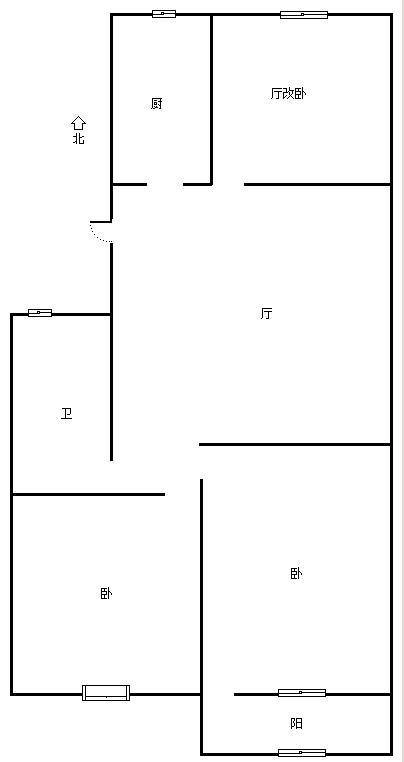
房源描述:三室一厅 ,基本家具家电齐全,安全干净卫生。
位置描述:门口多条线路公交站,交通快速便利。
周边设施:小区有早点店,蔬菜水果店,快餐店,超市等
户型结构:采光较好,视野开阔,卧室朝南。本公司有大量附近房源着急出租,保证能给你找到一个温馨舒适的家!
位置描述:门口多条线路公交站,交通快速便利。
周边设施:小区有早点店,蔬菜水果店,快餐店,超市等
户型结构:采光较好,视野开阔,卧室朝南。本公司有大量附近房源着急出租,保证能给你找到一个温馨舒适的家!
房源照片
1
2
3
4
5
6
7
8
9
10
11
查看更多图片
小区信息
白马花园
周边配套
900
元/月
厅室3室1厅1卫1阳台
朝向南 建筑面积100㎡

