永大清华园 南北
保真房源
捡漏房源
成熟商圈
精装修
室内设施
房源描述
1.房子位置好,紧邻千佛山,千佛山医院,省中医院。
2.临近经十路、旅游路,出行方便,交通便利。
3.周围配套全,周围有大型超市、饭店等。
4.南北通透家具家电齐全,可做饭,拎包入住。
2.临近经十路、旅游路,出行方便,交通便利。
3.周围配套全,周围有大型超市、饭店等。
4.南北通透家具家电齐全,可做饭,拎包入住。
房源照片
2
3
4
5
6
7
8
9
10
11
12
13
14
15
16
查看更多图片
小区信息
永大清华园
周边配套
8000
元/月
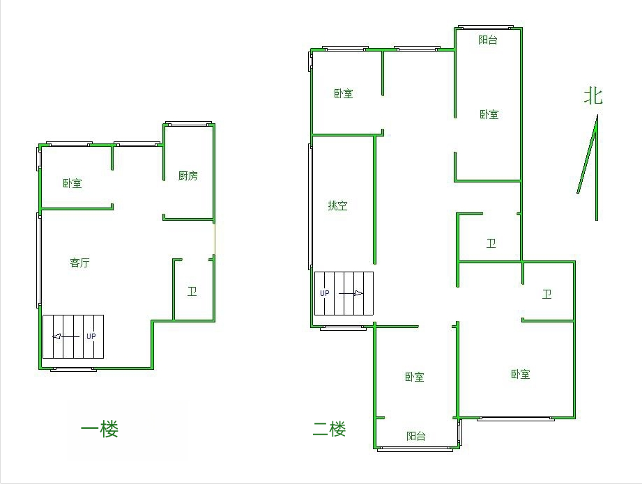
厅室5室3厅3卫2阳台
朝向南北 建筑面积281.19㎡

