中海奥龙观邸别墅 南北
保真房源
捡漏房源
成熟商圈
豪装
室内设施
房源描述
1、位置优势:房屋位于奥体龙奥商圈学校附近,闹中取静,交通四通八达,生活方便,附近有超市,菜市场等;
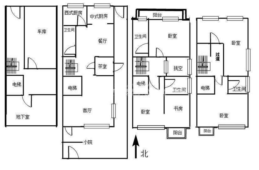
2、户型优势:5室3厅,南北卧室,客厅方正好用,安全性高!
3、房屋精装:人性化设计,诚心出租,价格可以再谈,欢迎随时看房。
2、户型优势:5室3厅,南北卧室,客厅方正好用,安全性高!
3、房屋精装:人性化设计,诚心出租,价格可以再谈,欢迎随时看房。
房源照片
2
3
4
5
6
7
8
9
10
11
12
13
14
15
16
17
18
19
20
21
22
23
24
25
26
27
28
29
30
31
32
查看更多图片
小区信息
中海奥龙观邸别墅
周边配套
50000
元/月
厅室5室3厅4卫2阳台
朝向南北 建筑面积251㎡

