宽敞明亮,居住舒服
小区周边交通便利,生活配套设施齐全
生活十分便利
方信家园 南
保真房源
捡漏房源
必看好房
满两年
精装修
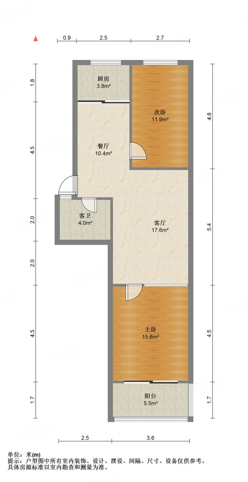
房源描述
房东诚心出售,看房方便
业主心态
业主很信任我,我能了解业主卖房新的动态,目前市场交易量平稳,不要错过好房
房源照片
1
2
3
4
5
6
7
8
9
10
查看更多图片
贷款计算器
-
贷款类型
商业贷款

- 商业贷款
- 公积金贷款
- 组合贷款
-
计算方式
按房屋总价
-
房屋总价
万元
-
贷款比例
70%

- 70%
- 65%
- 60%
- 55%
- 50%
- 45%
- 40%
- 35%
- 30%
- 25%
- 20%
-
贷款总额
万元
-
公积金贷款总额
万元
-
公积金年利率
最新基准利率
3.25%- 最新基准利率
- 1.1倍
- 1.2倍
-
商业贷款总额
万元
-
商业年利率
最新基准利率
4.9%- 7折
- 7.5折
- 8折
- 8.5折
- 9折
- 最新基准利率
- 1.05倍
- 1.1倍
- 1.2倍
- 1.3倍
-
贷款期限
25年

- 1年
- 5年
- 10年
- 15年
- 20年
- 25年
- 30年
开始计算
等额本息等额本金
月供金额:0元/月
每月递减元

