龙园小区,9,2室2厅,170万,满两年,清水,有电梯
保真房源
捡漏房源
必看好房
满两年
简单装修
房源描述
核心卖点:人车分流,24小时安保措施,高品位人士社区,绿化率高达60%;
户型介绍:精装南北通透三室,超大阳台,视野宽阔,户型设计合理,动静分离;主卧面宽大,带飘窗,采光超棒;
主卧面宽大,带飘窗,采光超棒;
产权信息:产权明晰,随时看房;
户型介绍:精装南北通透三室,超大阳台,视野宽阔,户型设计合理,动静分离;主卧面宽大,带飘窗,采光超棒;
主卧面宽大,带飘窗,采光超棒;
产权信息:产权明晰,随时看房;
业主心态
1、业主介绍:买来当婚房,打算自己住,装修特别用心,用的品牌装修原料;
2、卖房原因:婚后想法变了,主要考虑家里老人年纪大,必须要回家照顾,我跟我妻子决定回家发展,所以卖房!
3、诚意出售:不打算在济南呆,房子留着没啥用,性价比高,急售,现在入手时机合适!
2、卖房原因:婚后想法变了,主要考虑家里老人年纪大,必须要回家照顾,我跟我妻子决定回家发展,所以卖房!
3、诚意出售:不打算在济南呆,房子留着没啥用,性价比高,急售,现在入手时机合适!
房源照片
1
2
查看更多图片
贷款计算器
-
贷款类型
商业贷款

- 商业贷款
- 公积金贷款
- 组合贷款
-
计算方式
按房屋总价
-
房屋总价
万元
-
贷款比例
70%

- 70%
- 65%
- 60%
- 55%
- 50%
- 45%
- 40%
- 35%
- 30%
- 25%
- 20%
-
贷款总额
万元
-
公积金贷款总额
万元
-
公积金年利率
最新基准利率
3.25%- 最新基准利率
- 1.1倍
- 1.2倍
-
商业贷款总额
万元
-
商业年利率
最新基准利率
4.9%- 7折
- 7.5折
- 8折
- 8.5折
- 9折
- 最新基准利率
- 1.05倍
- 1.1倍
- 1.2倍
- 1.3倍
-
贷款期限
25年

- 1年
- 5年
- 10年
- 15年
- 20年
- 25年
- 30年
开始计算
等额本息等额本金
月供金额:0元/月
每月递减元
小区信息
龙园小区(济高龙园)
-
小区名称
-
区域
-
地址
-
开发商济南济高·东拓置业有限公司
-
物业公司济南高新物业
-
车位暂无资料
-
建筑面积138740
-
总户数2313
-
建筑年代2011年建
-
容积率0.6
-
物业费1.5
-
绿化率60
价格走势
周边配套
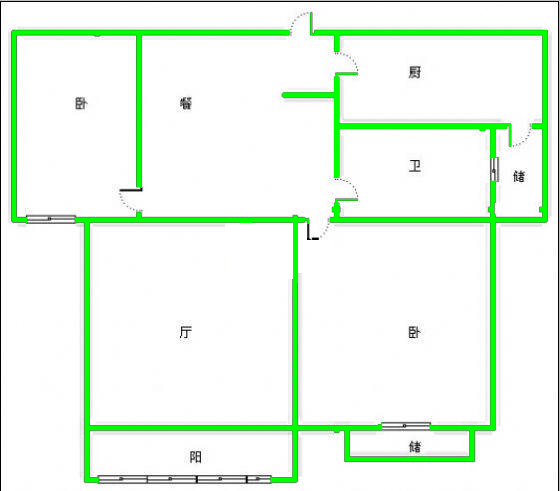
厅室2室2厅1卫1阳台
朝向南北 建筑面积94㎡
小区名称
龙园小区(济高龙园)
所在楼层
低楼层/共27层
装修标准
简单装修
房屋类型
商品房
唯一住房
否
产权年限
未知
配套电梯
无
房本年限
挂牌时间
2025-11-30 07:15:05
详细地址
高新舜华路东时代总部基地以北大山坡东南

