碧桂园凤凰城西区别墅 南北
保真房源
捡漏房源
必看好房
满两年
毛坯
房源描述
核心卖点:万科品质,人车分流,24小时安保措施,高品位人士社区,绿化率高达60%;
户型介绍:精装南北通透三室,超大阳台,视野宽阔,户型设计合理,动静分离;主卧面宽大,带飘窗,采光超棒;
主卧面宽大,带飘窗,采光超棒;
产权信息:产权明晰,随时看房;
户型介绍:精装南北通透三室,超大阳台,视野宽阔,户型设计合理,动静分离;主卧面宽大,带飘窗,采光超棒;
主卧面宽大,带飘窗,采光超棒;
产权信息:产权明晰,随时看房;
业主心态
1、业主介绍:买来当婚房,打算自己住,装修特别用心,用的品牌装修原料;
2、卖房原因:婚后想法变了,主要考虑家里老人年纪大,必须要回家照顾,我跟我妻子决定回家发展,所以卖房!
3、诚意出售:不打算在济南呆,房子留着没啥用,性价比高,急售,现在入手时机合适!
2、卖房原因:婚后想法变了,主要考虑家里老人年纪大,必须要回家照顾,我跟我妻子决定回家发展,所以卖房!
3、诚意出售:不打算在济南呆,房子留着没啥用,性价比高,急售,现在入手时机合适!
房源照片
1
2
3
4
5
6
7
8
9
10
11
查看更多图片
贷款计算器
-
贷款类型
商业贷款

- 商业贷款
- 公积金贷款
- 组合贷款
-
计算方式
按房屋总价
-
房屋总价
万元
-
贷款比例
70%

- 70%
- 65%
- 60%
- 55%
- 50%
- 45%
- 40%
- 35%
- 30%
- 25%
- 20%
-
贷款总额
万元
-
公积金贷款总额
万元
-
公积金年利率
最新基准利率
3.25%- 最新基准利率
- 1.1倍
- 1.2倍
-
商业贷款总额
万元
-
商业年利率
最新基准利率
4.9%- 7折
- 7.5折
- 8折
- 8.5折
- 9折
- 最新基准利率
- 1.05倍
- 1.1倍
- 1.2倍
- 1.3倍
-
贷款期限
25年

- 1年
- 5年
- 10年
- 15年
- 20年
- 25年
- 30年
开始计算
等额本息等额本金
月供金额:0元/月
每月递减元
小区信息
碧桂园凤凰城西区别墅
-
小区名称
-
区域
-
地址
-
开发商暂无资料
-
物业公司暂无资料
-
车位暂无资料
-
建筑面积暂无资料
-
总户数暂无资料
-
建筑年代2020年建
-
容积率暂无资料
-
物业费暂无资料
-
绿化率暂无资料
价格走势
周边配套
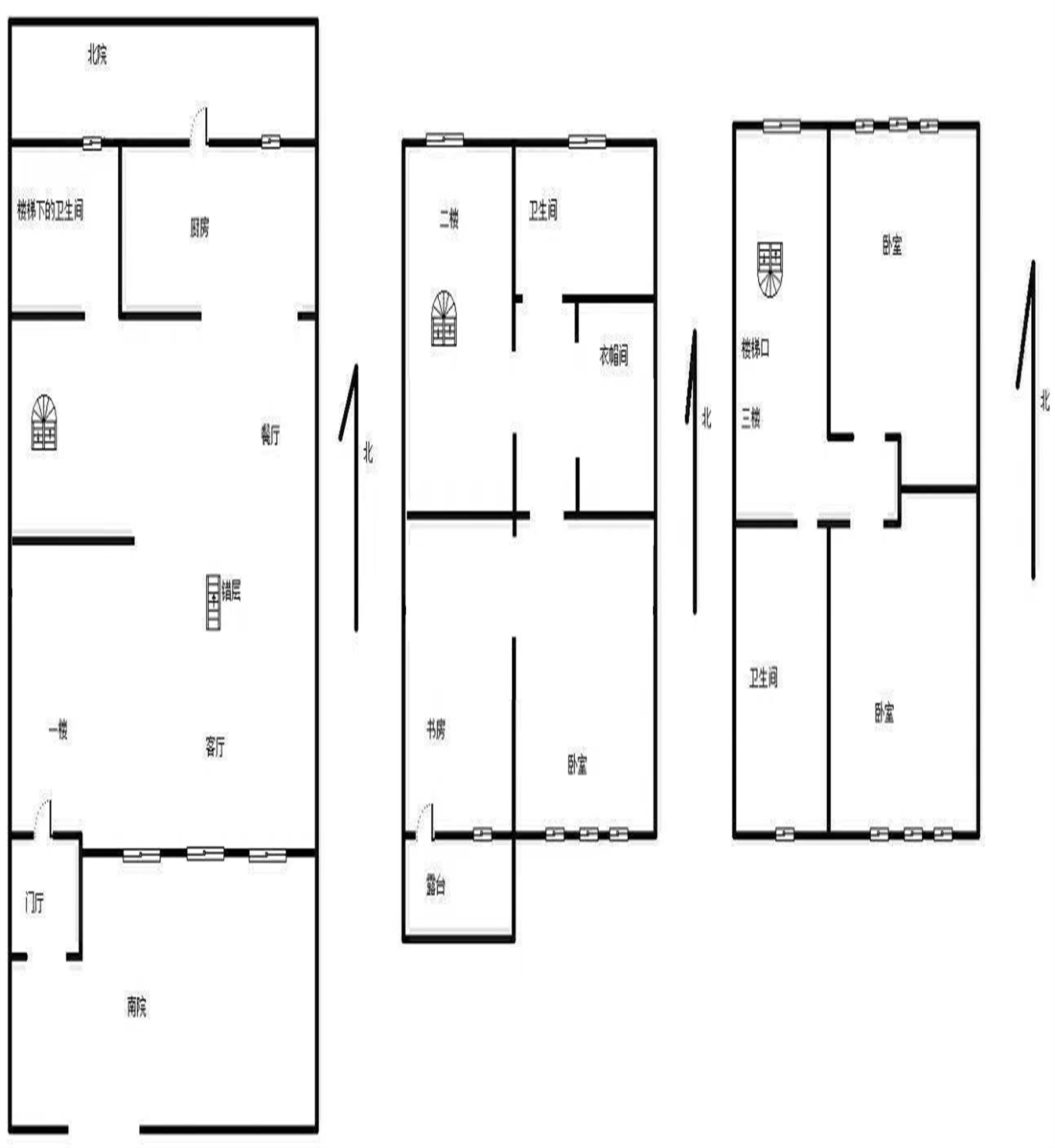
厅室3室2厅3卫2阳台
朝向南北 建筑面积183㎡
小区名称
碧桂园凤凰城西区别墅
所在楼层
高楼层/共1层
装修标准
毛坯
房屋类型
商品房
唯一住房
否
产权年限
未知
配套电梯
无
房本年限
挂牌时间
2025-11-14 16:53:08
详细地址
经十东路与二号路交叉口

