————我们只做精品房源,只做客户满意的房产————
(1)交通地段枢纽 近公交站点
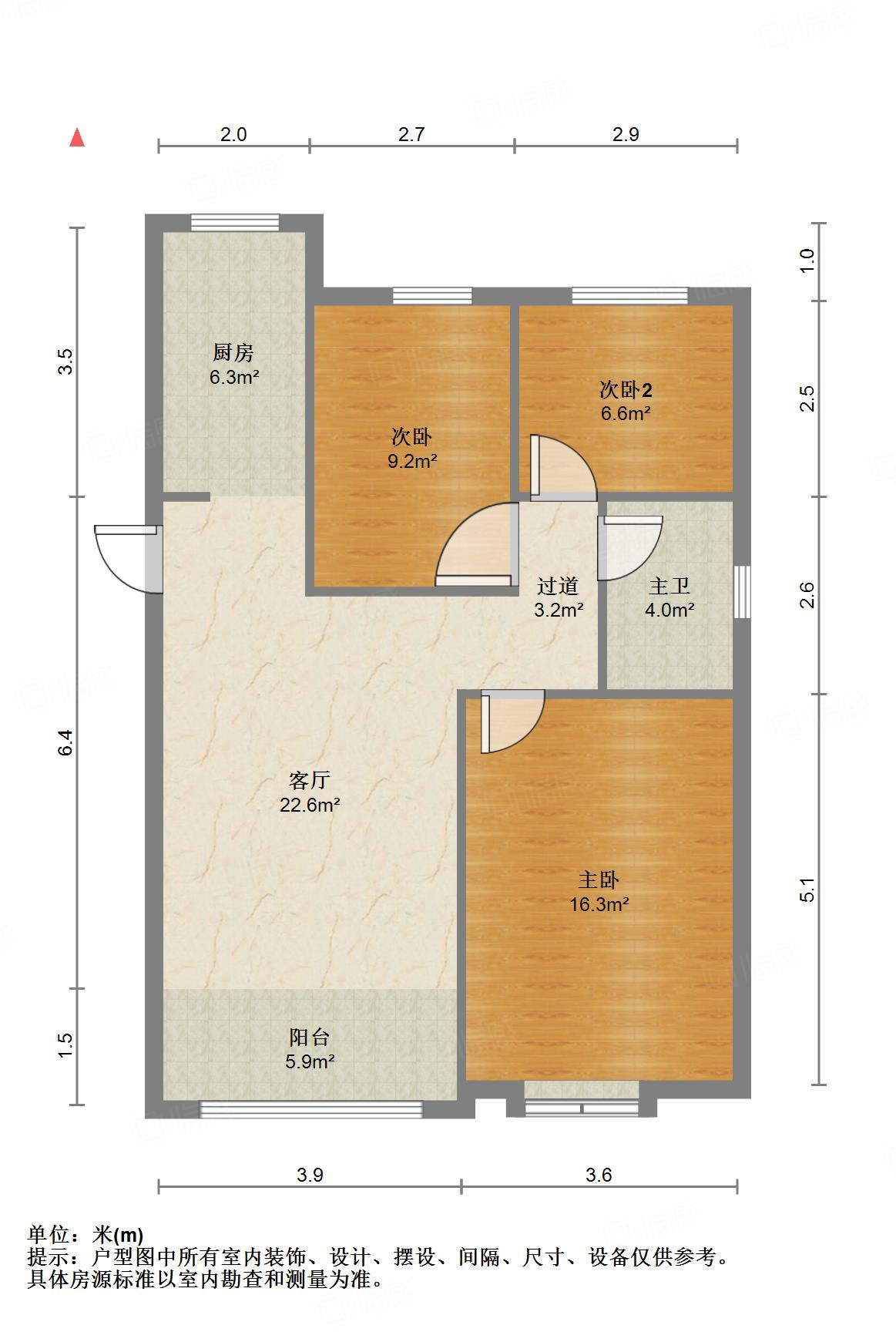
(2)全明户型 采光极好 生活方便
(3)配置齐全 家电家具全新
(4)装修保养好 房型设计布局合理 适宜居家
————我们只做精品房源,只做客户满意的房产————
(1)交通地段枢纽 近公交站点
(2)全明户型 采光极好 生活方便
(3)配置齐全 家电家具全新
(4)装修保养好 房型设计布局合理 适宜居家
1
2
3
4
5
6
7
8
9
贷款计算器
商业贷款 
按房屋总价
70% 
最新基准利率 
最新基准利率 
25年 
下载注册app,
填写推荐手机号
享受一对一vip服务