龙园好房 啊 好房子啊
保真房源
捡漏房源
必看好房
满两年
简单装修
房源描述
核心卖点:奥体核心商圈,户型好,南北通透,总价/单价低,品牌装修,有证
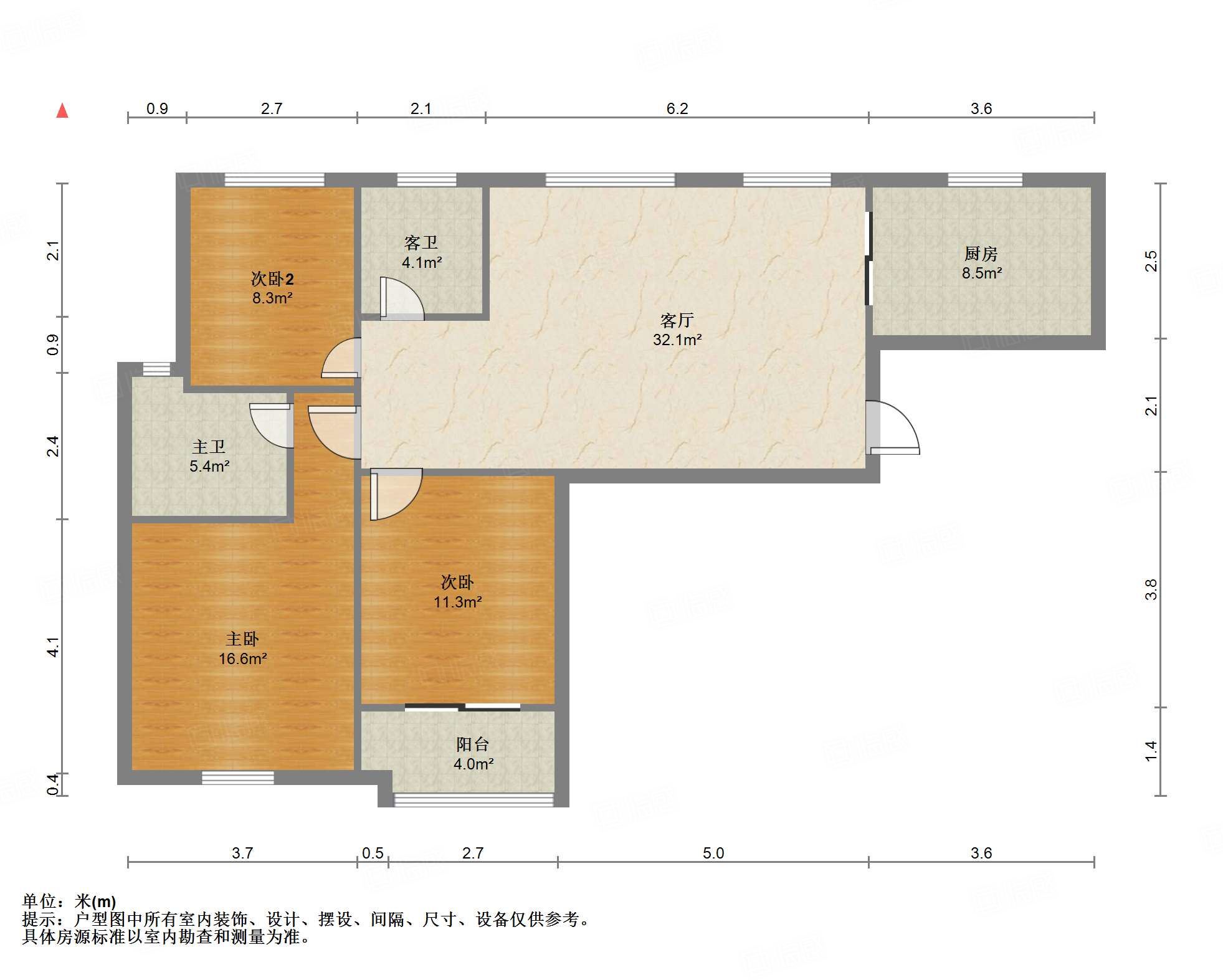
户型介绍:户型方正,南北通透,两室朝阳;布局合理,面积没有浪费;
产权信息:产权明晰,过户交易安全快捷;有钥匙能够随时看房;
户型介绍:户型方正,南北通透,两室朝阳;布局合理,面积没有浪费;
产权信息:产权明晰,过户交易安全快捷;有钥匙能够随时看房;
业主心态
1、业主介绍:房子格局很好,冲着这个开发商以及后期的规划买的。房子在整个小区里位置、楼层都很好,采光好,视野开阔。
2、卖房原因:工作调动,买的房子不能住了,忍痛割爱。
3、诚意出售:诚心卖房,希望早点碰到有缘人!
2、卖房原因:工作调动,买的房子不能住了,忍痛割爱。
3、诚意出售:诚心卖房,希望早点碰到有缘人!
房源照片
1
2
3
4
5
6
7
8
9
10
查看更多图片
贷款计算器
-
贷款类型
商业贷款

- 商业贷款
- 公积金贷款
- 组合贷款
-
计算方式
按房屋总价
-
房屋总价
万元
-
贷款比例
70%

- 70%
- 65%
- 60%
- 55%
- 50%
- 45%
- 40%
- 35%
- 30%
- 25%
- 20%
-
贷款总额
万元
-
公积金贷款总额
万元
-
公积金年利率
最新基准利率
3.25%- 最新基准利率
- 1.1倍
- 1.2倍
-
商业贷款总额
万元
-
商业年利率
最新基准利率
4.9%- 7折
- 7.5折
- 8折
- 8.5折
- 9折
- 最新基准利率
- 1.05倍
- 1.1倍
- 1.2倍
- 1.3倍
-
贷款期限
25年

- 1年
- 5年
- 10年
- 15年
- 20年
- 25年
- 30年
开始计算
等额本息等额本金
月供金额:0元/月
每月递减元
小区信息
龙园小区(济高龙园)
-
小区名称
-
区域
-
地址
-
开发商济南济高·东拓置业有限公司
-
物业公司济南高新物业
-
车位暂无资料
-
建筑面积138740
-
总户数2313
-
建筑年代2011年建
-
容积率0.6
-
物业费1.5
-
绿化率60
价格走势
周边配套
厅室3室2厅2卫1阳台
朝向南 建筑面积124.83㎡
小区名称
龙园小区(济高龙园)
所在楼层
高楼层/共22层
装修标准
简单装修
房屋类型
商品房
唯一住房
否
产权年限
未知
配套电梯
无
房本年限
挂牌时间
2025-12-08 18:00:01
详细地址
高新舜华路东时代总部基地以北大山坡东南

