理想嘉园 北
保真房源
捡漏房源
成熟商圈
精装修
室内设施
房源描述
一.房屋基本情况:
1、楼盘名称:理想嘉园
2、房屋性质:商品房。
3、装修情况:精装修。
4、配套情况:空调、冰箱、洗衣机、电视,全部家具家电拎包入住.
5、物业费用:1.5元包含电梯费。
6、腾房情况:房屋现在空置,干净整洁,随时入住。
7、看房时间:已委托钥匙,随时看房,24电话开机。
二、小区配套:
1、附近万达广场、银座超市、牛旺庄菜市场等,与各大生活便利。
2、交通方便:多路公交直达(163、10、99等)
3、靠近济南市国际会展中心。
1、楼盘名称:理想嘉园
2、房屋性质:商品房。
3、装修情况:精装修。
4、配套情况:空调、冰箱、洗衣机、电视,全部家具家电拎包入住.
5、物业费用:1.5元包含电梯费。
6、腾房情况:房屋现在空置,干净整洁,随时入住。
7、看房时间:已委托钥匙,随时看房,24电话开机。
二、小区配套:
1、附近万达广场、银座超市、牛旺庄菜市场等,与各大生活便利。
2、交通方便:多路公交直达(163、10、99等)
3、靠近济南市国际会展中心。
房源照片
1
2
3
4
5
6
7
8
9
10
查看更多图片
小区信息
理想嘉园
周边配套
2500
元/月
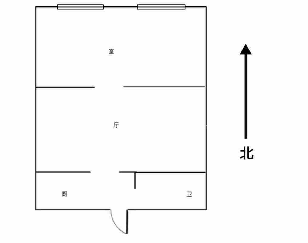
厅室1室1厅1卫1阳台
朝向北 建筑面积79㎡

