黄屯小区 南北
保真房源
捡漏房源
成熟商圈
简单装修
室内设施
房源描述
房屋精装:人性化设计,房东因置换房屋在东边买了新房,诚心出租,价格可以再谈,欢迎随时看房。
房源照片
1
2
3
4
5
6
7
8
9
10
11
查看更多图片
小区信息
黄屯小区
周边配套
1600
元/月
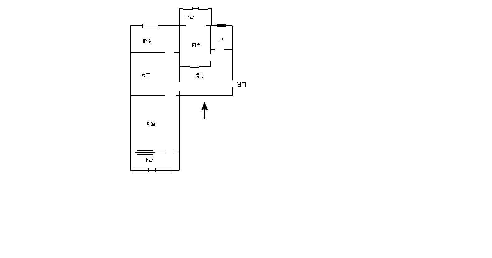
厅室2室1厅1卫1阳台
朝向南北 建筑面积64.83㎡

