赵家新苑 南
保真房源
捡漏房源
成熟商圈
精装修
室内设施
房源描述
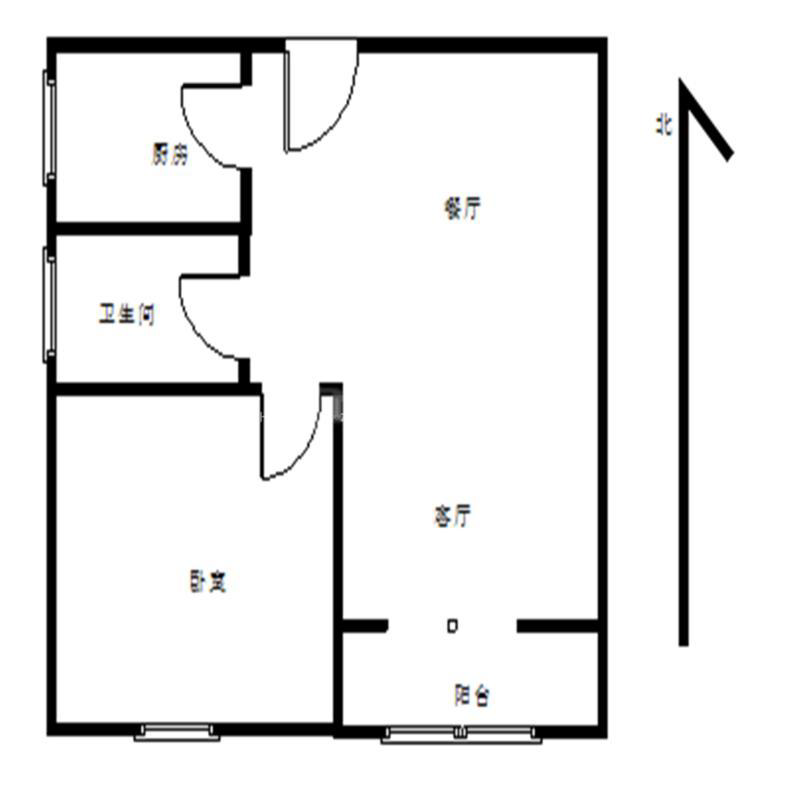
一、房源优势正规户型,日照充足,空气流畅
二、房屋介绍
格局合理,没有浪费面积,利用空间大,是不可多得的好户型
三、社区配套
1、环境优雅,低密度社区
2、小区绿化高
四、周边配套
地理位置得天独厚,出行方便!
五、推荐理由
让您体验惬意的生活,充分享受生活的美!
二、房屋介绍
格局合理,没有浪费面积,利用空间大,是不可多得的好户型
三、社区配套
1、环境优雅,低密度社区
2、小区绿化高
四、周边配套
地理位置得天独厚,出行方便!
五、推荐理由
让您体验惬意的生活,充分享受生活的美!
房源照片
1
2
3
4
5
6
7
查看更多图片
小区信息
赵家新苑
周边配套
2100
元/月
厅室1室1厅1卫0阳台
朝向南 建筑面积61㎡

