龙湖新壹街 东
保真房源
捡漏房源
成熟商圈
精装修
室内设施
房源描述
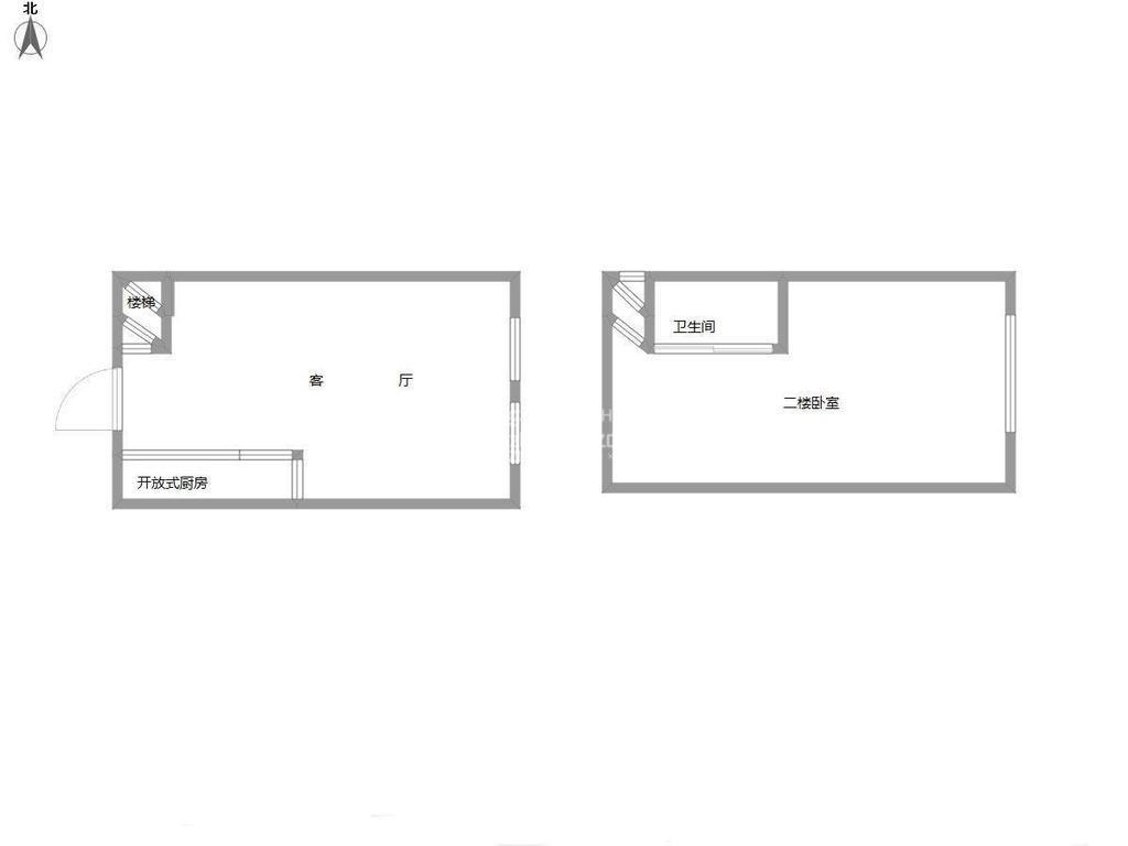
1、位置优势:房屋位于西客站商圈学校附近,闹中取静,交通四通八达,生活方便,附近有超市菜市场等;
2、户型优势:1室1厅,南北卧室,客厅方正好用,单元对讲门,安全性高!
3、房屋精装:人性化设计,房东因置换房屋在东边买了新房,诚心出租,价格可以再谈,欢迎随时看房。
2、户型优势:1室1厅,南北卧室,客厅方正好用,单元对讲门,安全性高!
3、房屋精装:人性化设计,房东因置换房屋在东边买了新房,诚心出租,价格可以再谈,欢迎随时看房。
房源照片
1
2
3
4
5
6
查看更多图片
小区信息
龙湖新壹街
周边配套
1500
元/月
小区名称
龙湖新壹街
商铺行业
未知
地段
未知
建筑面积
45㎡
进深
未知
层高
未知
宽度
未知
装修
精装修
位置
未知
楼层/总高
高楼层/共4层
付款方式
挂牌时间
2025-11-25 13:47:30
详细地址
槐荫青岛路与腊山河西路交界处北行800米路东

