万科龙湖城市之光 南北
保真房源
捡漏房源
成熟商圈
精装修
室内设施
房源描述
1、位置优势:房屋位于济钢商圈/鲍山学校附近,闹中取静,交通四通八达,生活方便;
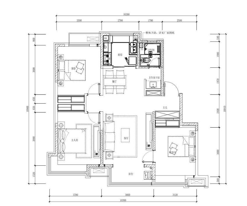
2、户型优势:3室2厅,南北卧室,客厅方正好用,单元对讲门,大院传达,安全性高!
3、房屋精装:人性化设计,房东因置换房屋在东边买了新房,诚心出租,价格可以再谈,欢迎随时看房。
2、户型优势:3室2厅,南北卧室,客厅方正好用,单元对讲门,大院传达,安全性高!
3、房屋精装:人性化设计,房东因置换房屋在东边买了新房,诚心出租,价格可以再谈,欢迎随时看房。
房源照片
1
2
3
4
5
6
7
8
9
10
11
12
查看更多图片
小区信息
万科龙湖城市之光
周边配套
2200
元/月
厅室3室2厅1卫1阳台
朝向南北 建筑面积112㎡

