-
建筑面积19900
-
总户数暂无资料
-
建筑年代2004年建
-
容积率1.5
-
物业费0.40
-
绿化率暂无资料
凤凰山庄 东
保真房源
捡漏房源
成熟商圈
新上
精装修
室内设施
房源照片
2
3
4
5
6
7
8
9
查看更多图片
小区信息
凤凰山庄
周边配套
2200
元/月
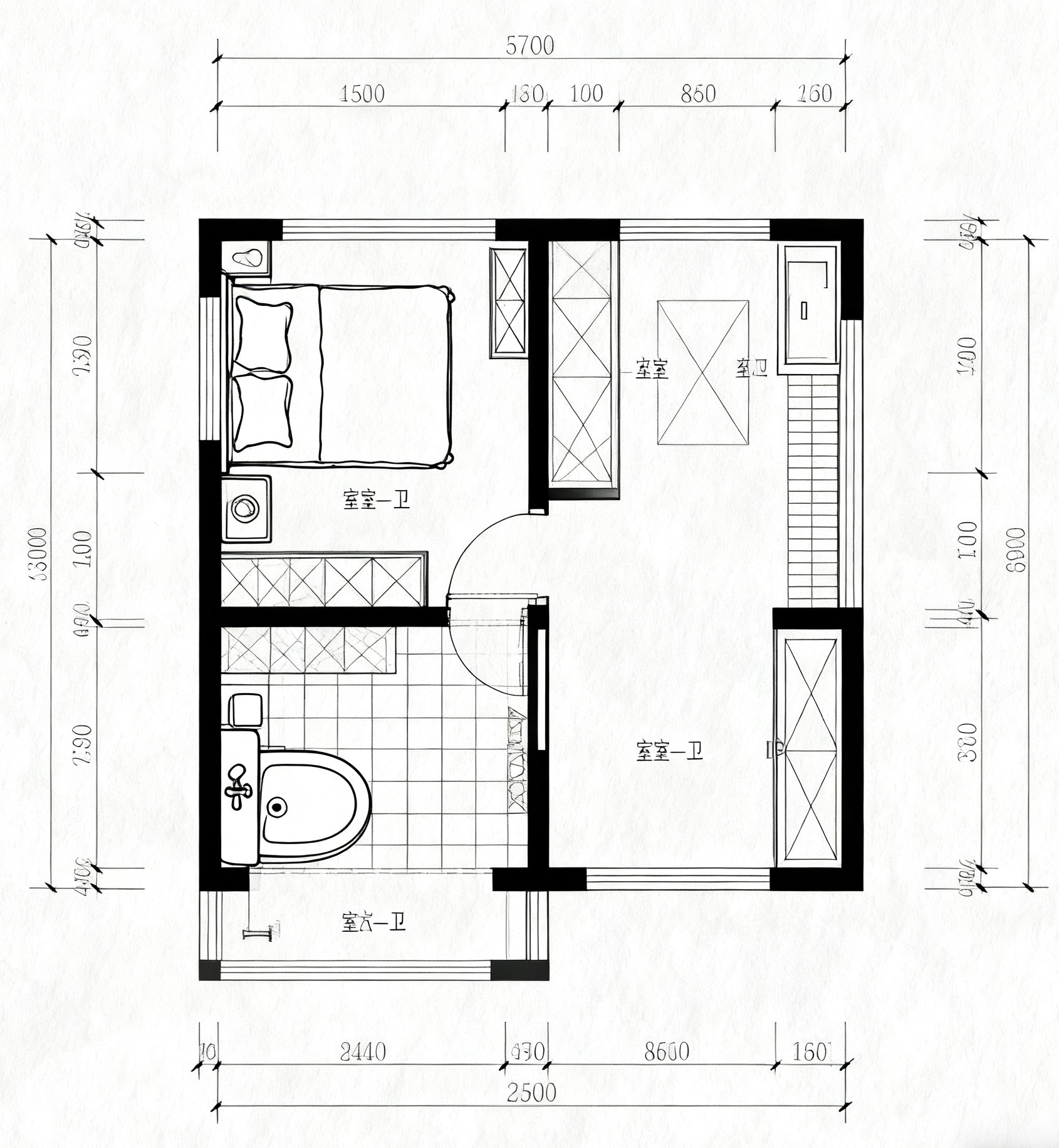
厅室2室1厅1卫1阳台
朝向东 建筑面积82.16㎡

