-
建筑面积暂无资料
-
总户数204
-
建筑年代2000年建
-
容积率2.1
-
物业费暂无资料
-
绿化率30
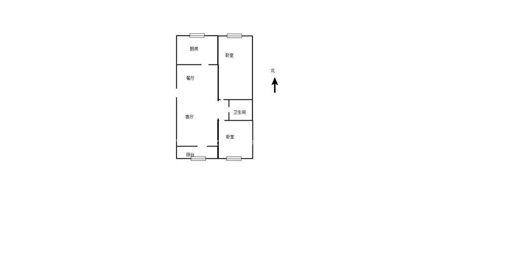
天景小区 南北
保真房源
捡漏房源
成熟商圈
精装修
更新时间:
2025-12-04 20:00:06

