-
建筑面积14033
-
总户数1090
-
建筑年代1991年建
-
容积率3
-
物业费暂无资料
-
绿化率25
羊头峪西沟宿舍 南北
保真房源
捡漏房源
成熟商圈
简单装修
室内设施
房源照片
2
3
4
5
6
7
8
查看更多图片
小区信息
羊头峪西沟宿舍
周边配套
1800
元/月
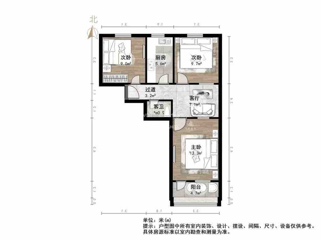
厅室3室1厅1卫1阳台
朝向南北 建筑面积68㎡

