-
建筑面积98700
-
总户数13971
-
建筑年代2016年建
-
容积率4.3
-
物业费2.95
-
绿化率30
诚基中心 东
保真房源
捡漏房源
成熟商圈
精装修
室内设施
房源照片
2
3
4
5
6
7
8
查看更多图片
小区信息
诚基中心
周边配套
1500
元/月
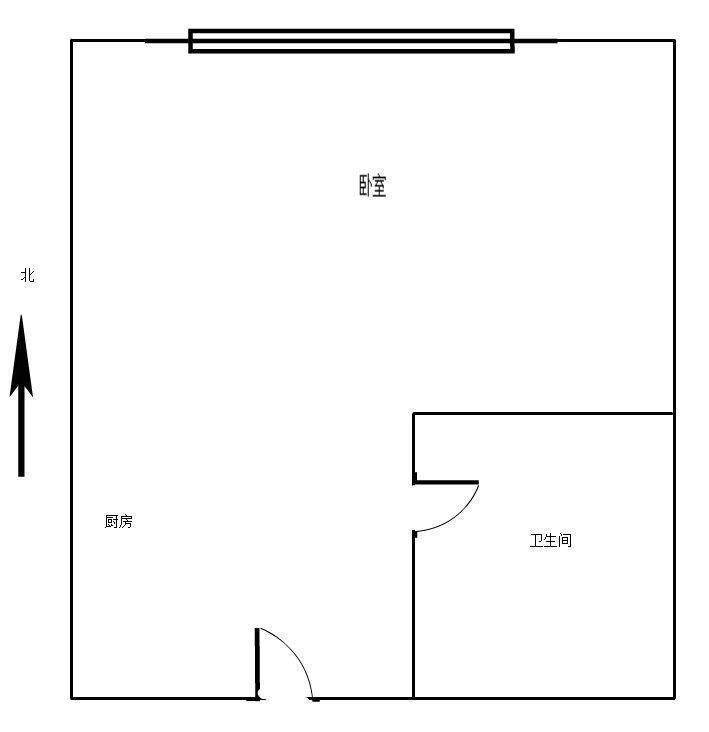
厅室1室0厅1卫1阳台
朝向东 建筑面积20㎡

