-
建筑面积22184
-
总户数2067
-
建筑年代2025年建
-
容积率4.2
-
物业费2.98
-
绿化率35
加州荔枝公寓 南
保真房源
捡漏房源
成熟商圈
精装修
室内设施
房源照片
2
3
4
5
6
7
8
查看更多图片
小区信息
加州荔枝公寓
周边配套
1100
元/月
小区名称
加州荔枝公寓
商铺行业
未知
地段
未知
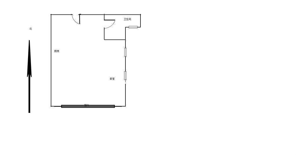
建筑面积
41.71㎡
进深
未知
层高
未知
宽度
未知
装修
精装修
位置
未知
楼层/总高
高楼层/共21层
付款方式
一次付清
挂牌时间
2025-11-25 13:57:21
详细地址
天桥区二环北路南侧、顺河高架西侧

