-
建筑面积暂无资料
-
总户数3262
-
建筑年代2001年建
-
容积率暂无资料
-
物业费0.3
-
绿化率35
济钢新村东区 南
保真房源
捡漏房源
成熟商圈
简单装修
室内设施
房源照片
1
2
3
4
5
6
7
8
查看更多图片
小区信息
济钢新村东区
周边配套
1100
元/月
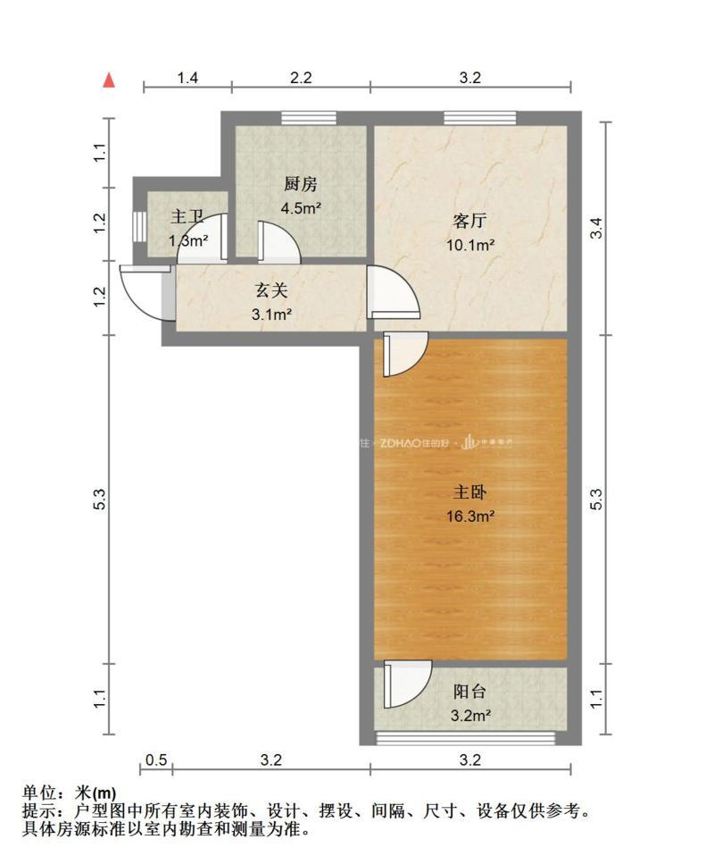
厅室1室1厅1卫1阳台
朝向南 建筑面积50㎡

