保真房源
捡漏房源
成熟商圈
简单装修
室内设施
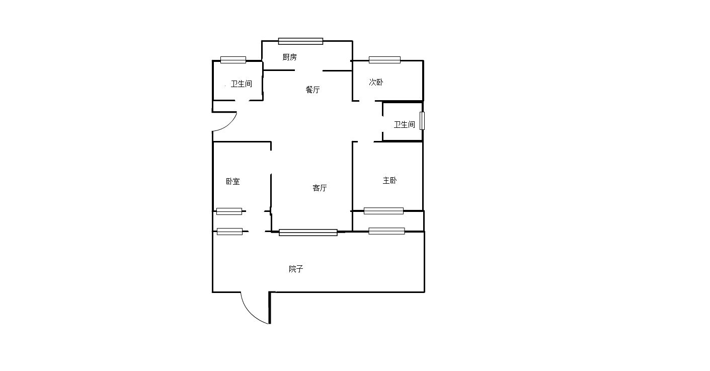
房源照片
1
2
3
4
5
6
7
8
9
10
11
12
13
14
15
16
17
18
19
查看更多图片

