1
租房

保真房源 捡漏房源 成熟商圈 简单装修
20670 元/月
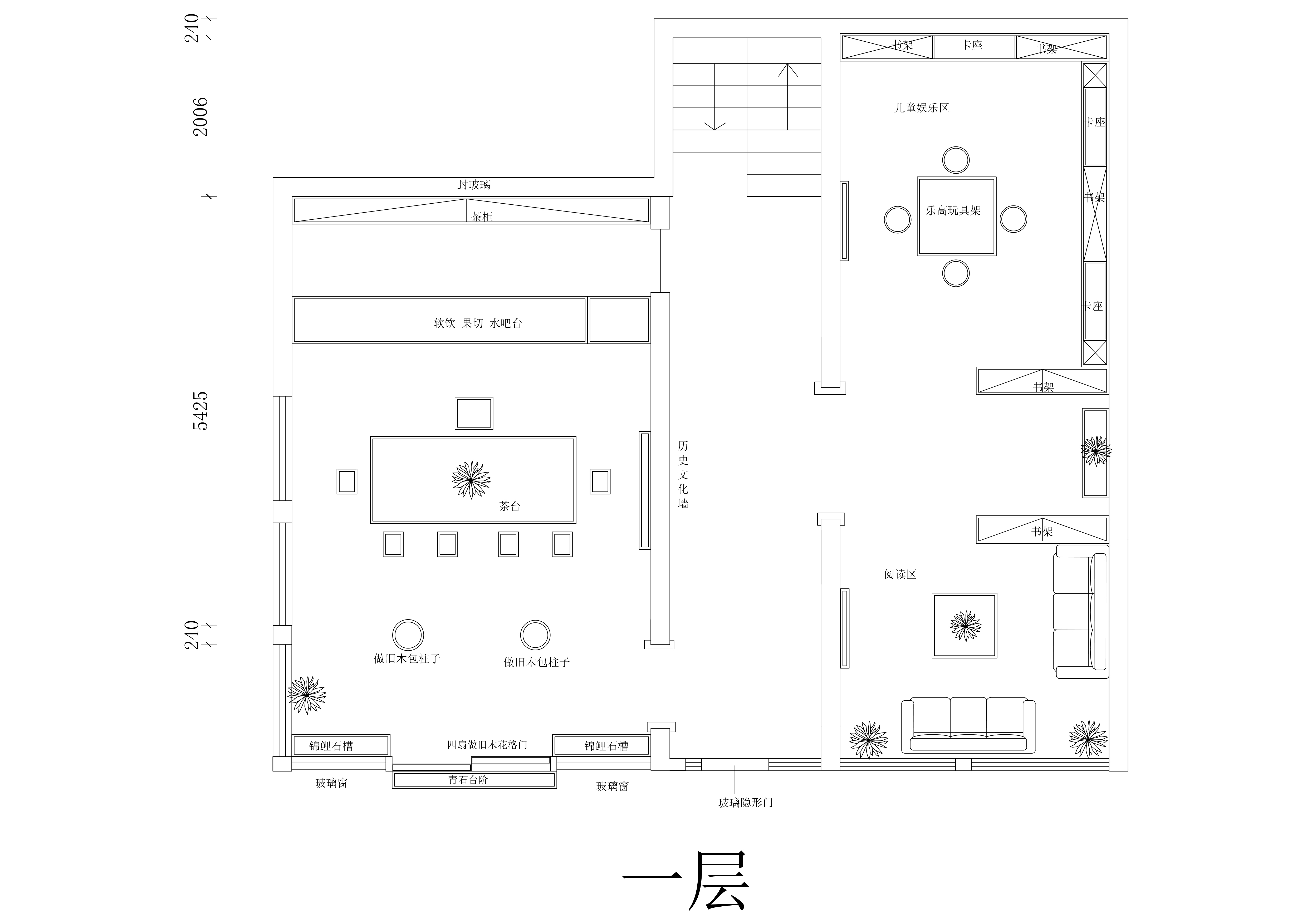
小区名称
面积 275.6㎡
付款方式 一次付清
宽度
管理费用
长度
位置
挂牌时间 2025-11-25 13:48:05
房源编号 81105394C973D
详细地址
耿秀芳
耿秀芳
微信扫码拨号
中住地产经纪人倾情为您服务!