-
建筑面积暂无资料
-
总户数暂无资料
-
建筑年代2004年建
-
容积率暂无资料
-
物业费暂无资料
-
绿化率暂无资料
桃园小区北区 南北
保真房源
捡漏房源
成熟商圈
简单装修
室内设施
房源照片
1
2
3
4
5
6
7
8
查看更多图片
小区信息
桃园小区北区
周边配套
900
元/月
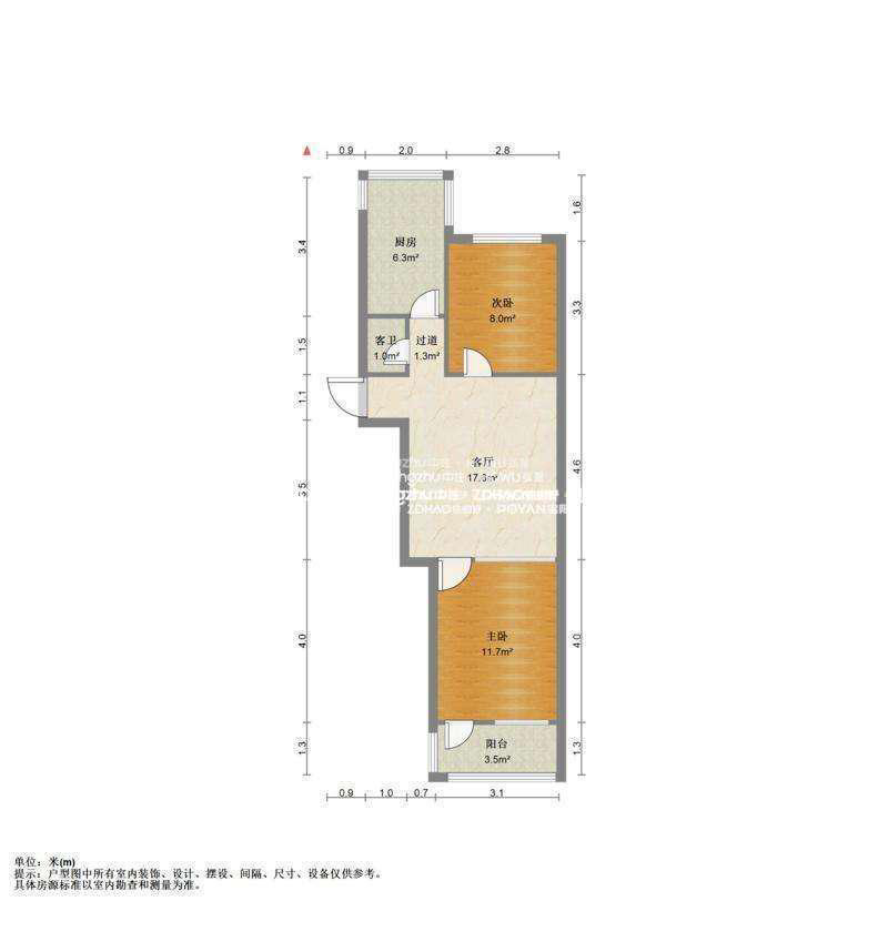
厅室2室2厅1卫0阳台
朝向南北 建筑面积67㎡
小区名称
桃园小区北区
所在楼层
低楼层/共5层
装修标准
简单装修
租赁方式
整租
配套电梯
无
详细地址
槐荫区张庄街道经六路与刘家庄路交汇处北侧
挂牌时间
2025-12-11 19:18:01

