-
建筑面积暂无资料
-
总户数7039
-
建筑年代2022年建
-
容积率4.25
-
物业费2.4
-
绿化率35.6
恒大翡翠华庭 南
保真房源
捡漏房源
成熟商圈
精装修
室内设施
房源照片
1
2
3
4
5
6
7
8
查看更多图片
小区信息
恒大翡翠华庭
周边配套
1500
元/月
小区名称
恒大翡翠华庭
商铺行业
未知
地段
未知
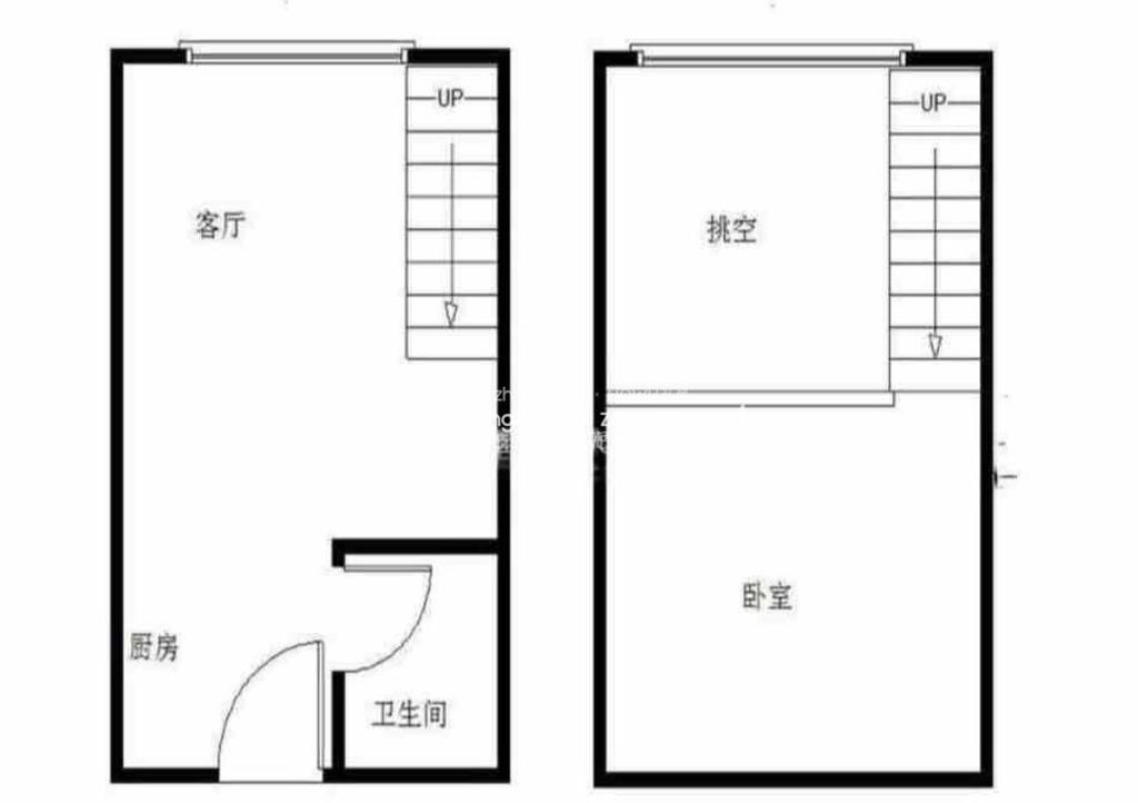
建筑面积
39㎡
进深
未知
层高
未知
宽度
未知
装修
精装修
位置
未知
楼层/总高
低楼层/共22层
付款方式
一次付清
挂牌时间
2025-12-12 10:24:02
详细地址
兴福寺南路与滨州路交叉路口往西北约100米

