-
建筑面积暂无资料
-
总户数暂无资料
-
建筑年代2004年建
-
容积率暂无资料
-
物业费暂无资料
-
绿化率暂无资料
桃园小区北区 南北
保真房源
捡漏房源
成熟商圈
精装修
室内设施
房源照片
1
2
3
4
5
6
7
8
9
10
11
查看更多图片
小区信息
桃园小区北区
周边配套
1100
元/月
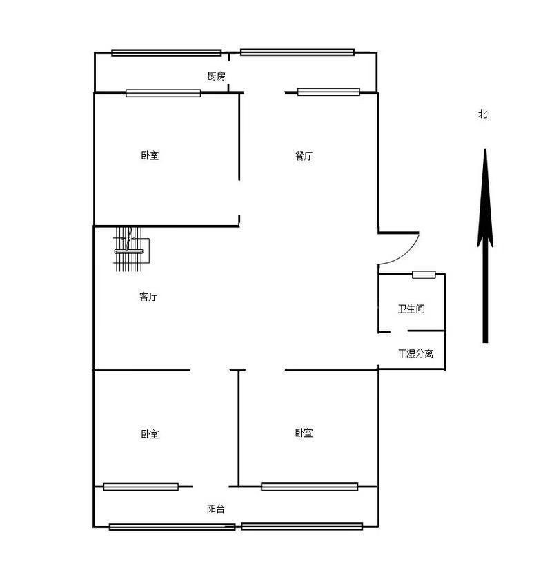
厅室2室1厅1卫1阳台
朝向南北 建筑面积100㎡

