-
建筑面积暂无资料
-
总户数暂无资料
-
建筑年代1995年建
-
容积率2
-
物业费0.20
-
绿化率30
天桥东街单位宿舍 南北
保真房源
捡漏房源
成熟商圈
简单装修
室内设施
房源照片
1
2
3
4
5
6
7
8
查看更多图片
小区信息
天桥东街单位宿舍
周边配套
900
元/月
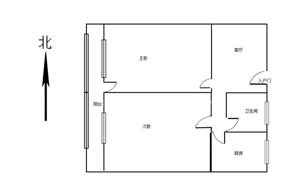
厅室2室1厅1卫1阳台
朝向南北 建筑面积52.14㎡

