-
建筑面积暂无资料
-
总户数2437
-
建筑年代1999年建
-
容积率暂无资料
-
物业费1.2
-
绿化率暂无资料
兴颐小区 南北
保真房源
捡漏房源
成熟商圈
简单装修
室内设施
房源照片
1
2
3
4
5
6
7
8
9
10
11
查看更多图片
小区信息
兴颐小区
周边配套
2600
元/月
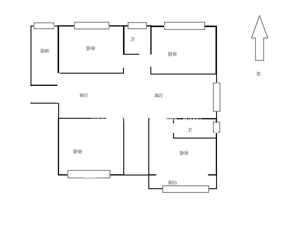
厅室4室2厅2卫1阳台
朝向南北 建筑面积159㎡

