-
建筑面积72036
-
总户数1267
-
建筑年代2005年建
-
容积率1.32
-
物业费0.30
-
绿化率30
金田苑小区 南北
保真房源
捡漏房源
成熟商圈
简单装修
室内设施
房源照片
1
2
3
4
5
6
7
8
9
查看更多图片
小区信息
金田苑小区
周边配套
1000
元/月
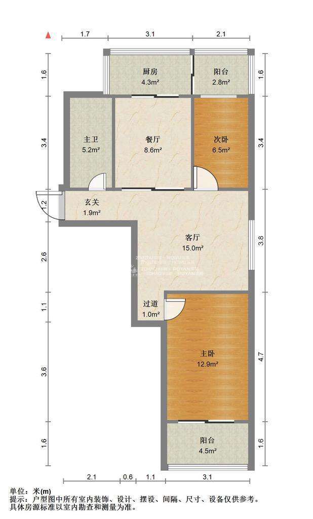
厅室2室1厅1卫1阳台
朝向南北 建筑面积50.04㎡

