-
建筑面积45333
-
总户数暂无资料
-
建筑年代2016年建
-
容积率2.9
-
物业费1.50元/平方米·月
-
绿化率40
名流华第 南北
保真房源
捡漏房源
成熟商圈
精装修
室内设施
房源照片
1
2
3
4
5
6
7
8
9
10
11
12
13
14
15
16
17
18
查看更多图片
小区信息
名流华第
周边配套
2100
元/月
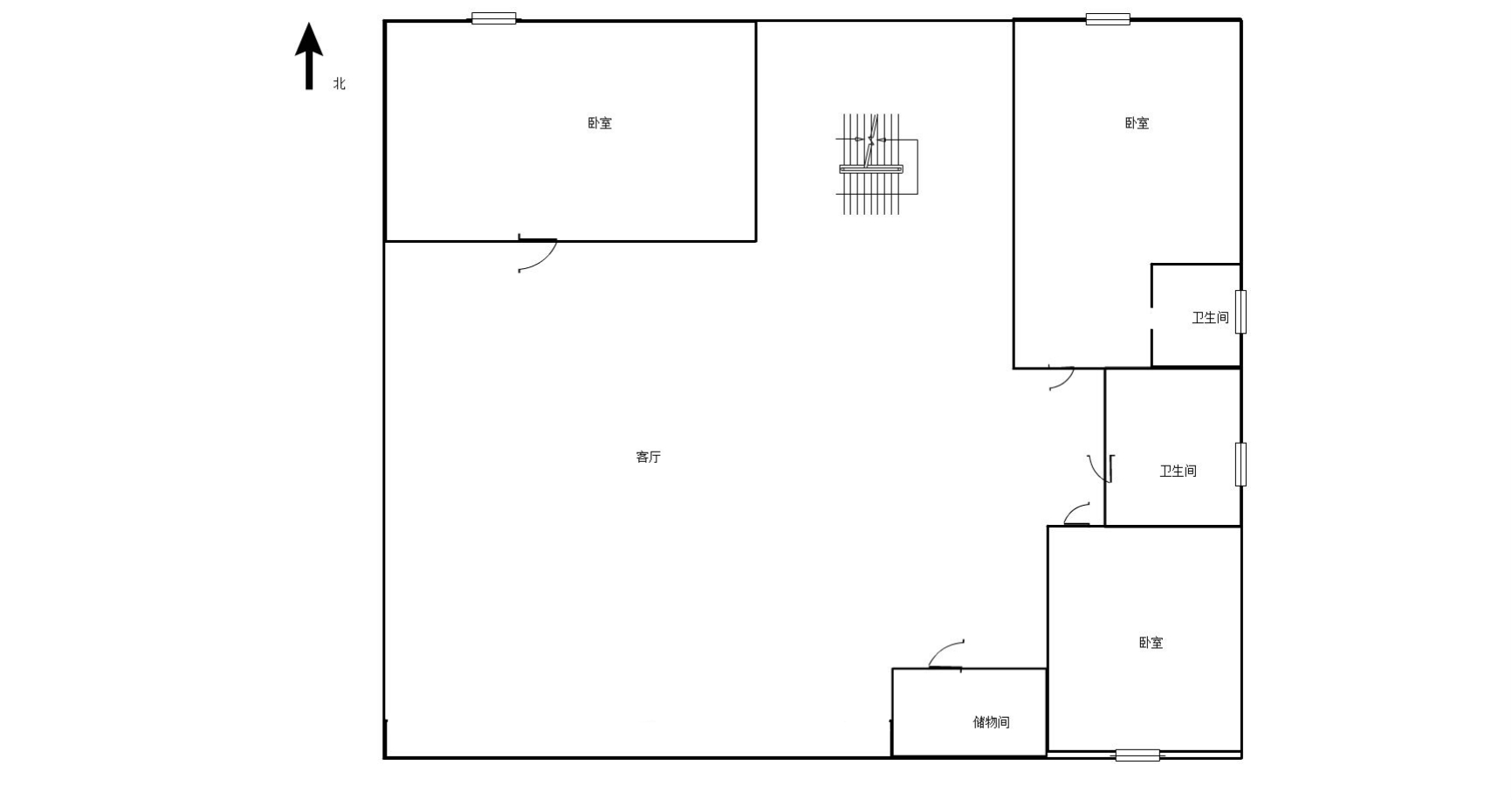
厅室3室1厅1卫0阳台
朝向南北 建筑面积82.49㎡

