-
建筑面积400000
-
总户数4289
-
建筑年代2010年建
-
容积率1
-
物业费0.8
-
绿化率40
普利林景山庄 南北
保真房源
捡漏房源
成熟商圈
毛坯
室内设施
房源照片
1
2
3
4
5
6
7
8
9
10
11
12
13
14
15
16
查看更多图片
小区信息
普利林景山庄
周边配套
3200
元/月
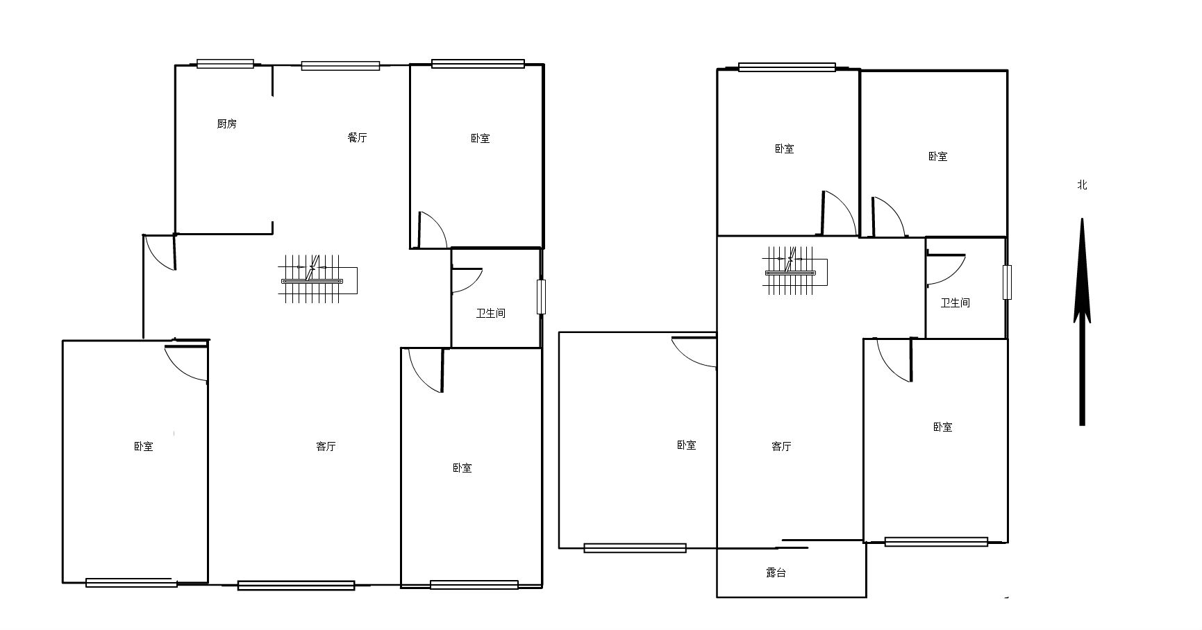
厅室6室2厅2卫1阳台
朝向南北 建筑面积240㎡

