国泰财智广场 北
保真房源
捡漏房源
成熟商圈
精装修
室内设施
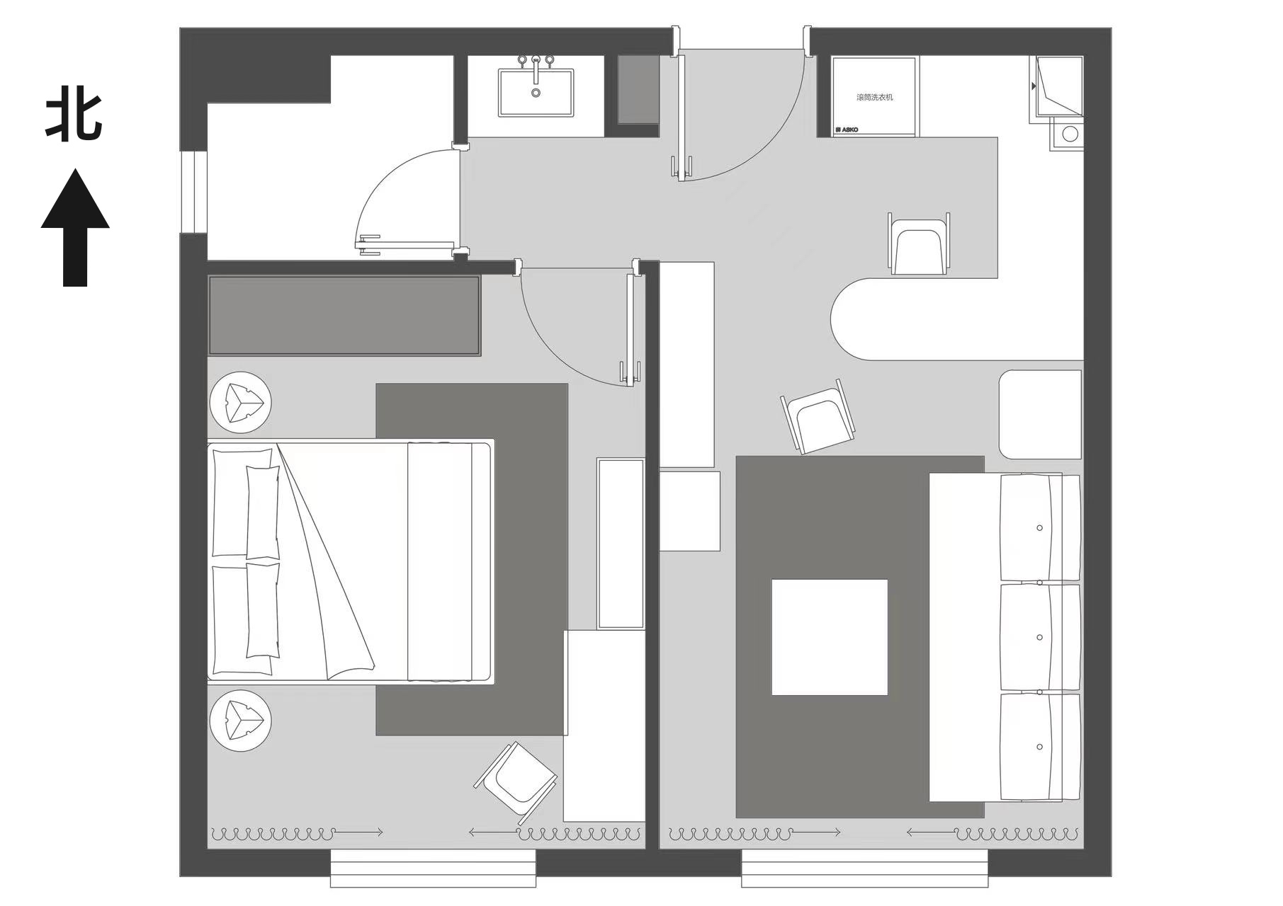
房源照片
2
3
4
5
6
7
查看更多图片

