1
租房

国泰财智广场 北

保真房源 捡漏房源 成熟商圈 精装修
1250 元/月
小区名称
商铺行业 未知
地段 未知
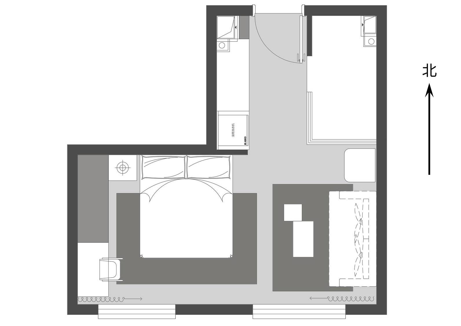
建筑面积 42㎡
进深 未知
层高 未知
宽度 未知
装修 精装修
位置 未知
楼层/总高 中楼层/共26层
付款方式 一次付清
挂牌时间 2025-10-28 14:16:16
房源编号 80512F2A45957
详细地址
焦万滨
焦万滨
微信扫码拨号
中住地产经纪人倾情为您服务!