1
租房

国泰财智广场 北

保真房源 捡漏房源 成熟商圈 精装修
1200 元/月
小区名称
商铺行业 未知
地段 未知
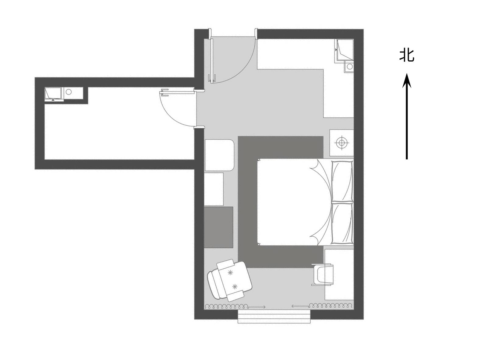
建筑面积 38㎡
进深 未知
层高 未知
宽度 未知
装修 精装修
位置 未知
楼层/总高 低楼层/共26层
付款方式 一次付清
挂牌时间 2025-11-03 15:25:01
房源编号 805126C7AC113
详细地址
焦万滨
焦万滨
微信扫码拨号
中住地产经纪人倾情为您服务!