-
建筑面积560000
-
总户数1706
-
建筑年代2023年建
-
容积率3.6
-
物业费4
-
绿化率35
世茂时代先声 南
保真房源
捡漏房源
成熟商圈
毛坯
室内设施
房源照片
1
2
3
4
5
6
7
8
9
10
11
查看更多图片
小区信息
世茂时代先声
周边配套
4800
元/月
小区名称
世茂时代先声
商铺行业
未知
地段
未知
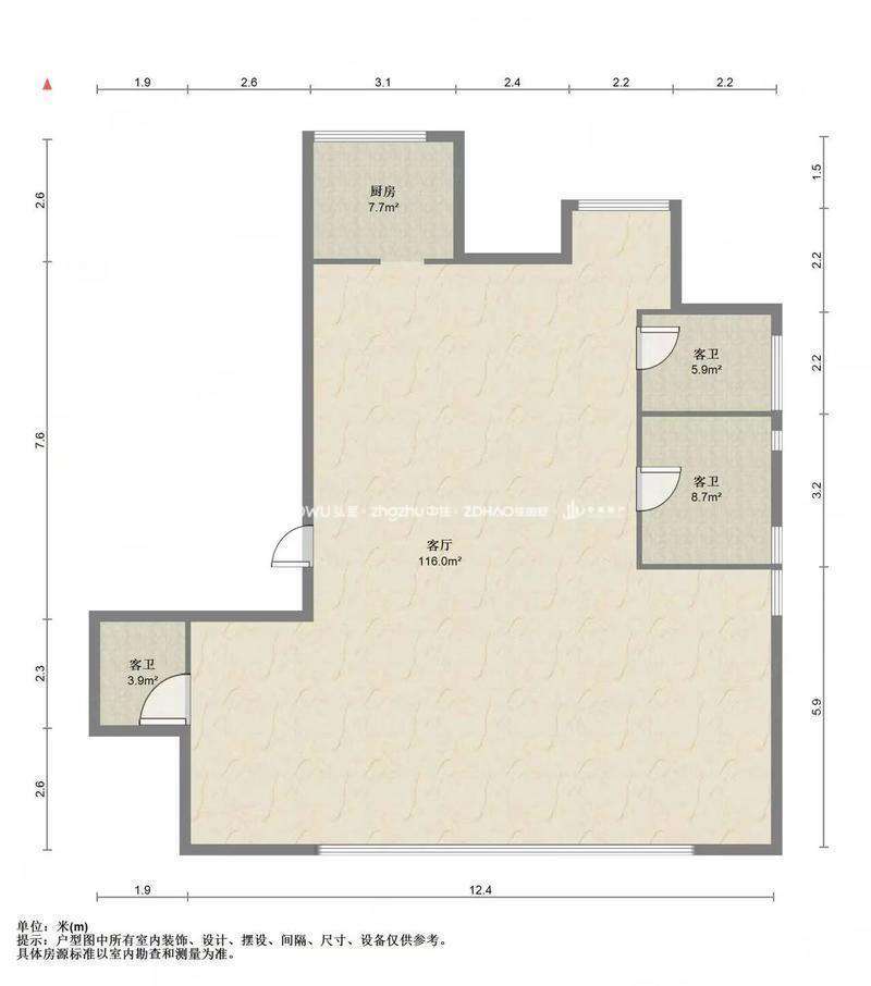
建筑面积
214㎡
进深
未知
层高
未知
宽度
未知
装修
毛坯
位置
未知
楼层/总高
低楼层/共33层
付款方式
一次付清
挂牌时间
2025-12-01 13:03:01
详细地址
历城区唐冶新区世纪大道与围子山路交汇处西南角

