-
建筑面积8936
-
总户数1181
-
建筑年代2017年建
-
容积率5
-
物业费4.2
-
绿化率25
天泰山大e号 南北
保真房源
捡漏房源
成熟商圈
精装修
室内设施
房源照片
2
3
4
5
6
7
8
9
查看更多图片
小区信息
天泰山大e号
周边配套
2800
元/月
小区名称
天泰山大e号
商铺行业
未知
地段
未知
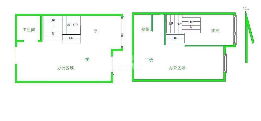
建筑面积
56㎡
进深
未知
层高
未知
宽度
未知
装修
精装修
位置
未知
楼层/总高
中楼层/共14层
付款方式
一次付清
挂牌时间
2025-12-05 13:42:01
详细地址
山大路与文化东路交汇北行200米路西

