-
建筑面积306820
-
总户数3217
-
建筑年代2005年建
-
容积率1.2
-
物业费0.48
-
绿化率40
汇源华庭 南
保真房源
捡漏房源
成熟商圈
精装修
室内设施
房源照片
2
3
4
5
6
7
8
9
10
查看更多图片
小区信息
汇源华庭
周边配套
1500
元/月
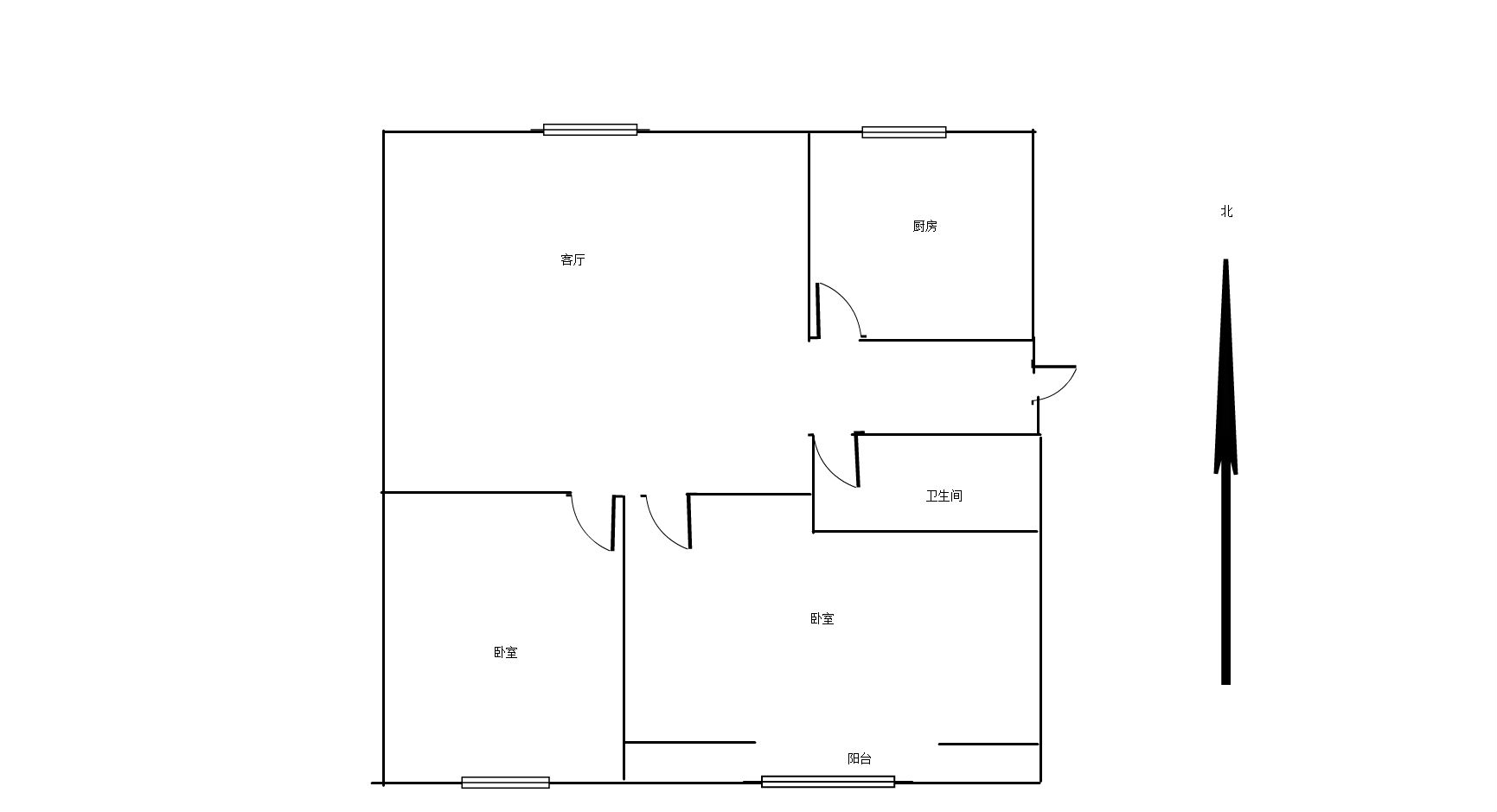
厅室2室2厅1卫1阳台
朝向南 建筑面积100㎡

