长清检察院宿舍楼 南
保真房源
捡漏房源
成熟商圈
精装修
室内设施
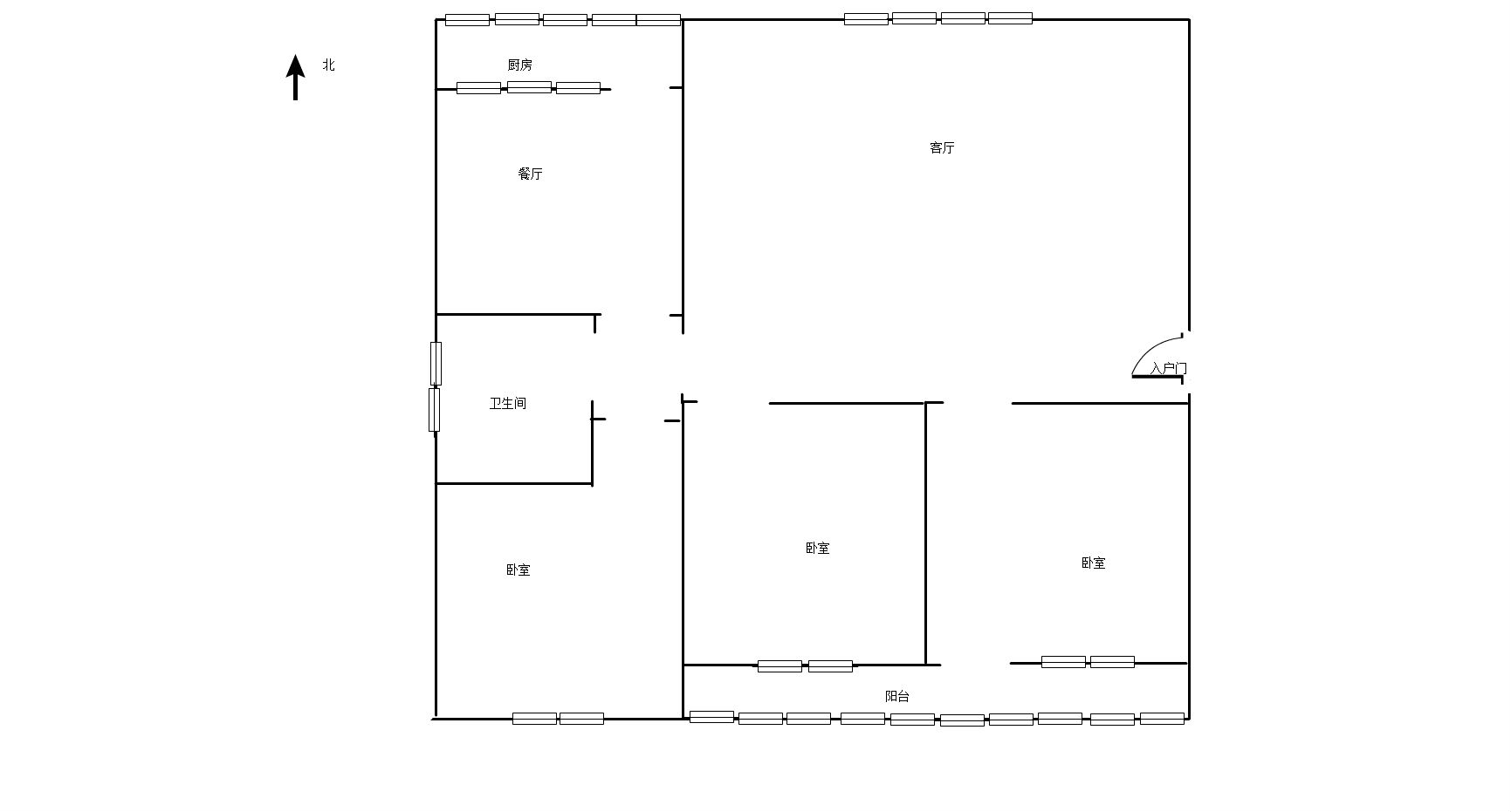
房源照片
1
2
3
4
5
6
7
8
9
10
11
12
13
查看更多图片

