-
建筑面积36600
-
总户数1260
-
建筑年代2002年建
-
容积率2.2
-
物业费0.40
-
绿化率37
影山花园 南北
保真房源
捡漏房源
成熟商圈
简单装修
室内设施
房源照片
2
3
4
5
6
7
8
9
10
11
查看更多图片
小区信息
影山花园
周边配套
1500
元/月
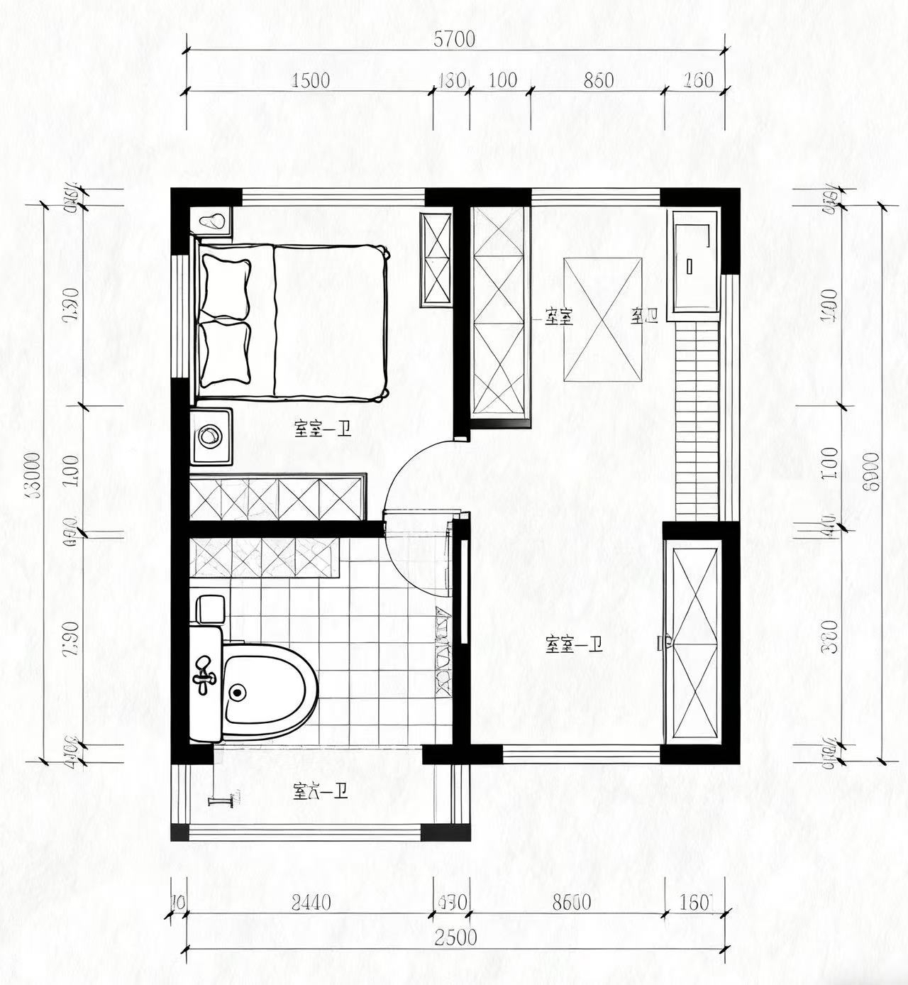
厅室2室2厅1卫1阳台
朝向南北 建筑面积93.21㎡

