-
建筑面积暂无资料
-
总户数2380
-
建筑年代2014年建
-
容积率1.2
-
物业费0.6
-
绿化率暂无资料
徐家庄 南北
保真房源
捡漏房源
成熟商圈
简单装修
室内设施
房源照片
1
2
3
4
5
6
7
8
查看更多图片
小区信息
徐家庄
周边配套
750
元/月
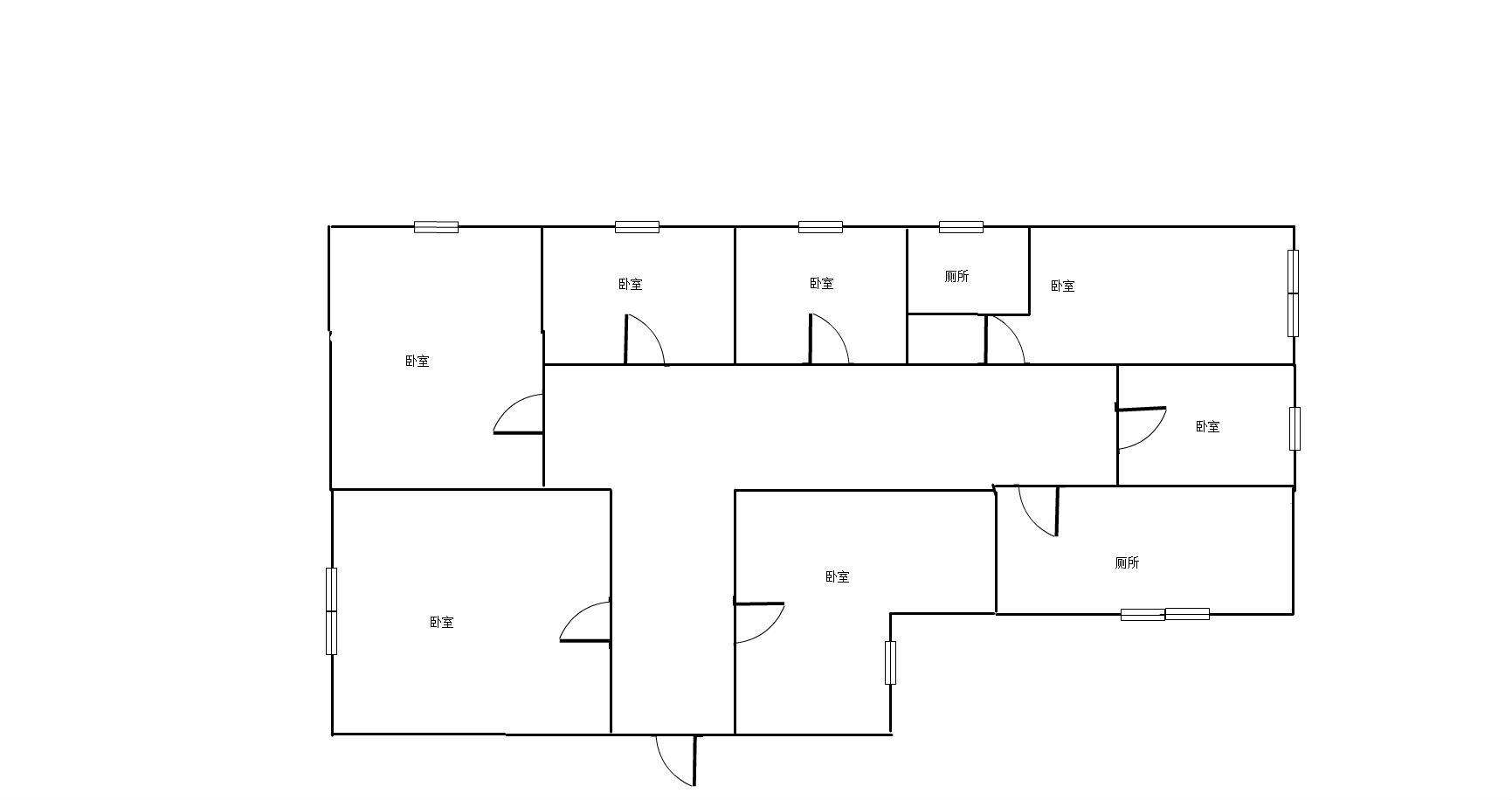
厅室1室1厅1卫0阳台
朝向南北 建筑面积37㎡

